Wichtigste Vorzüge:
- Außergewöhnliches Raumangebot: 204m² (164m² Nutzfläche) + 74m² Terrassen
- Wunderschöner, 400m² großer Südgarten mit Panoramablick auf die andalusischen Hügel und das Meer
- Absoluter Komfort: Ruhe, Privatsphäre und Funktionalität
- Erstklassige Ausstattung: separate Klimaanlage pro Raum, Fußbodenheizung in den Badezimmern, hohe Decken, Gäste-WC, übergroße Fenster, viel Stauraum, etc.
- Gehobene Annehmlichkeiten: 2 Tiefgaragenplätze, Keller, Aufzug, geschlossene und gesicherte Residenz mit beheiztem Pool, Fitnessstudio, Spa, ...
Im Herzen der exklusiven Anlage Marbella Club Hills bietet diese Maisonette-Gartenwohnung mit 3 Schlafzimmern eine seltene Lebensqualität: das Gefühl eines Hauses kombiniert mit der Sicherheit und dem Komfort einer Premium-Residenz. Die Immobilie wird voll möbliert verkauft und ermöglicht einen sofortigen Einzug.
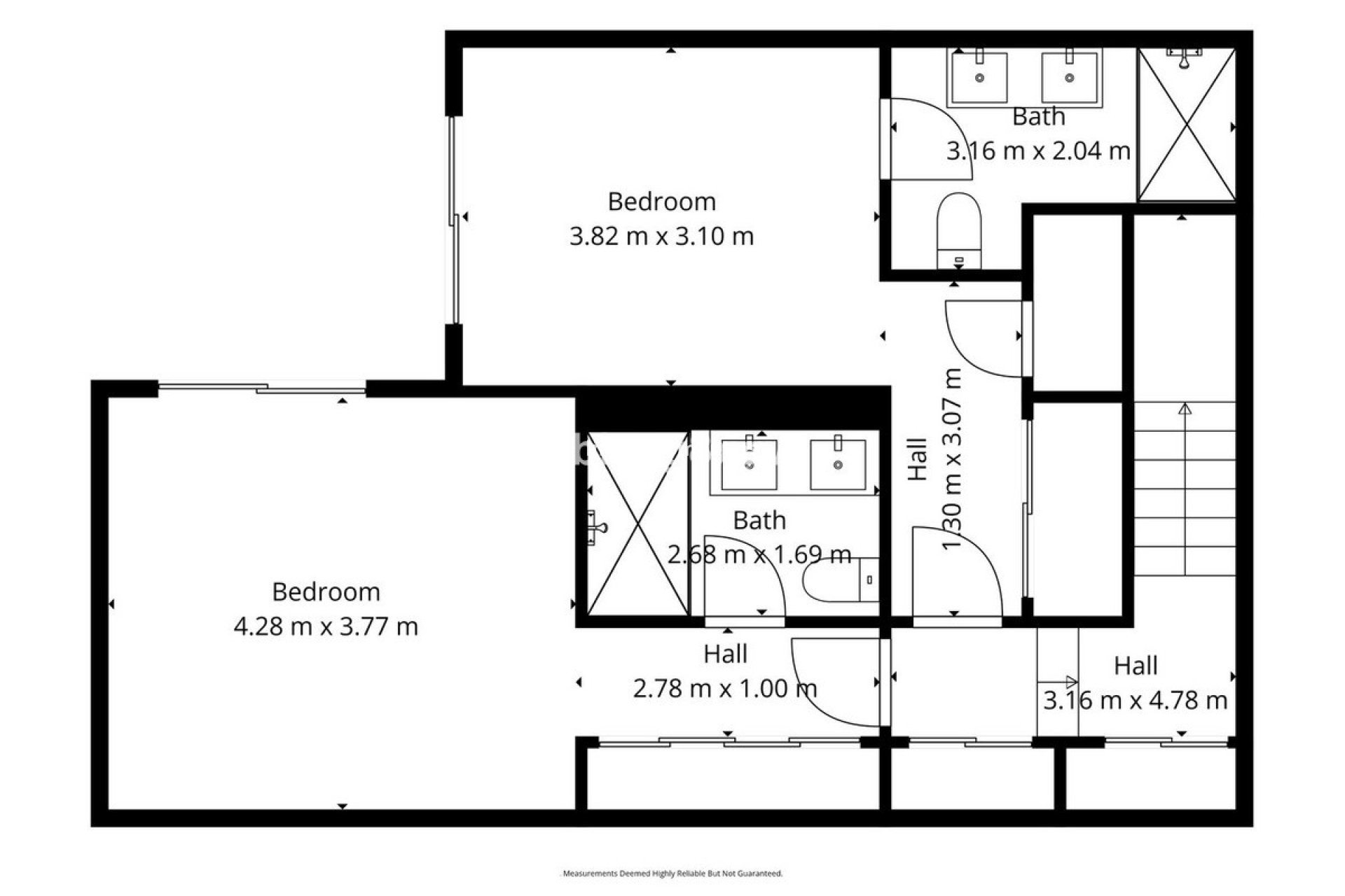
Schon beim Betreten werden Sie von den großzügigen Räumen (164m² Nutzfläche) und dem natürlichen Licht begeistert sein. Die Hauptebene erstreckt sich um einen weitläufigen Wohnbereich von 74m², in dem Wohnzimmer, Essbereich und die moderne Küche perfekt harmonieren. Große, bodentiefe Fensterfronten fluten das Innere den ganzen Tag über mit Licht und bieten gleichzeitig einen herrlichen Blick auf die umliegenden Hügel und das Meer.
Das Anwesen profitiert zudem von einem wunderschönen, sonnendurchfluteten Garten zur alleinigen Nutzung von 400m² sowie mehreren überdachten und offenen Terrassen. Diese eignen sich ideal für sonnige Morgenstunden, Mittagessen im Freien, Sommerabende mit der Familie oder Freunden oder einfach zum Entspannen an der frischen Luft.
Die geräumige Master-Suite auf dieser Ebene genießt ebenfalls Meerblick direkt nach dem Aufwachen. Sie verfügt über große Einbauschränke und direkten Zugang zur Terrasse und zum Garten.
In der unteren Etage befinden sich zwei große Schlafzimmer, die jeweils mit geräumigen Schränken und einem eigenen Bad en Suite ausgestattet sind, was Unabhängigkeit, Privatsphäre und Komfort für Familie oder Gäste garantiert. Beide Zimmer öffnen sich zu einem Patio mit Zugang zum Garten.
Die Ausstattung spiegelt die gleichen hohen Ansprüche wie die Architektur wider: Aerothermie, separate Klimatisierung pro Raum, Fußbodenheizung in den Bädern, Fliegengitter, Premium-Verarbeitung, exzellente Energieeffizienzklasse B und C.
Zur Immobilie gehören außerdem zwei Tiefgaragenplätze und ein Keller, die bequem mit dem Aufzug erreichbar sind.
Ein prestigeträchtiges und exklusives Umfeld:
Marbella Club Hills ist bekannt für seine Exklusivität, seine elegante Architektur und seine einzigartige Kombination aus Modernität und andalusischem Charme. Der North Club bietet einen beheizten Außenpool, einen voll ausgestatteten Fitnessraum, einen Boule-Platz, einen Social Club, ein Spa und ein Hammam zur Entspannung. Der zukünftige South Club wird im Rahmen der Phasen II und III einen Innenpool, ein Fitnessstudio, einen Social/Co-Working-Bereich sowie Outdoor-Sportanlagen wie Tennis- und Paddle-Plätze umfassen. Da nur 6% des Grundstücks bebaut sind, garantiert die von Natur umgebene Gemeinschaft absolute Privatsphäre und unvergleichliche Ruhe, während der gesicherte Eingang die Gelassenheit des Ortes unterstreicht.
In Benahavís gelegen, in der exklusiven Enklave zwischen dem renommierten Marbella Club Golf Resort und dem ikonischen Anantara Villa Padierna Palace, befindet sich dieses außergewöhnliche Anwesen nur 20 Minuten von Estepona, 30 Minuten vom Stadtzentrum von Marbella und 55 Minuten vom internationalen Flughafen Málaga entfernt.
Der private Garten, die großzügigen Volumina und das allgegenwärtige Licht schaffen ein beruhigendes Wohnumfeld, ideal als Hauptwohnsitz oder Urlaubsdomizil. Verpassen Sie nicht diese einzigartige Gelegenheit, ein Stück Paradies zu besitzen: Kontaktieren Sie uns noch heute, um einen Besichtigungstermin zu vereinbaren!