Villa de Nueva Construcción con un Diseño Atractivo en Mijas
La villa está en una tranquila comunidad residencial en Mijas, Costa del Sol, disfrutando de preciosas vistas a la montaña. Lo más destacado de la propiedad es su inmejorable relación calidad-precio.
Villa de Alta Calidad y Eficiencia Energética en una Zona Demandada de Mijas
Esta villa contemporánea se encuentra en el municipio de Mijas, uno de los destinos más populares de la Costa del Sol. El municipio abarca una extensa zona que se extiende desde las playas de arena de la costa hasta las montañas. Este fantástico enclave cosmopolita presume de un clima agradablemente suave durante todo el año, cómodas conexiones por carretera, proximidad al aeropuerto internacional de Málaga-Costa del Sol, infraestructuras desarrolladas, infinitas opciones deportivas y de ocio que incluyen fantásticos campos de golf y resorts y, por supuesto, una gran variedad de oportunidades inmobiliarias.
Las villas de nueva construcción en venta en Mijas se encuentran en un entorno tranquilo y encantador dentro de un codiciado barrio residencial en la zona de Buenavista. Al mismo tiempo, la propiedad está cerca de literalmente todo, todo el ajetreo y el bullicio de la animada costa está a pocos minutos de distancia. La villa ofrece un rápido acceso a la principal autopista A-7, por lo que todos los puntos de interés están a poca distancia. La villa está a 4 km de las playas de arena, a 4,5 km del centro del encalado Mijas Pueblo, a 9 km del centro de la vecina Fuengirola, a 18 km del aeropuerto de Málaga-Costa del Sol y a 35 km de Marbella.
La villa se encuentra dentro de una tranquila comunidad establecida al pie de la montaña en una parcela de casi 700 metros cuadrados. La villa cuenta con preciosas zonas exteriores con jardines de fácil mantenimiento y una piscina al aire libre. Las terrazas cubiertas y descubiertas con fantásticas vistas a la montaña son extensiones naturales de la casa para disfrutar plenamente de la vida al aire libre.
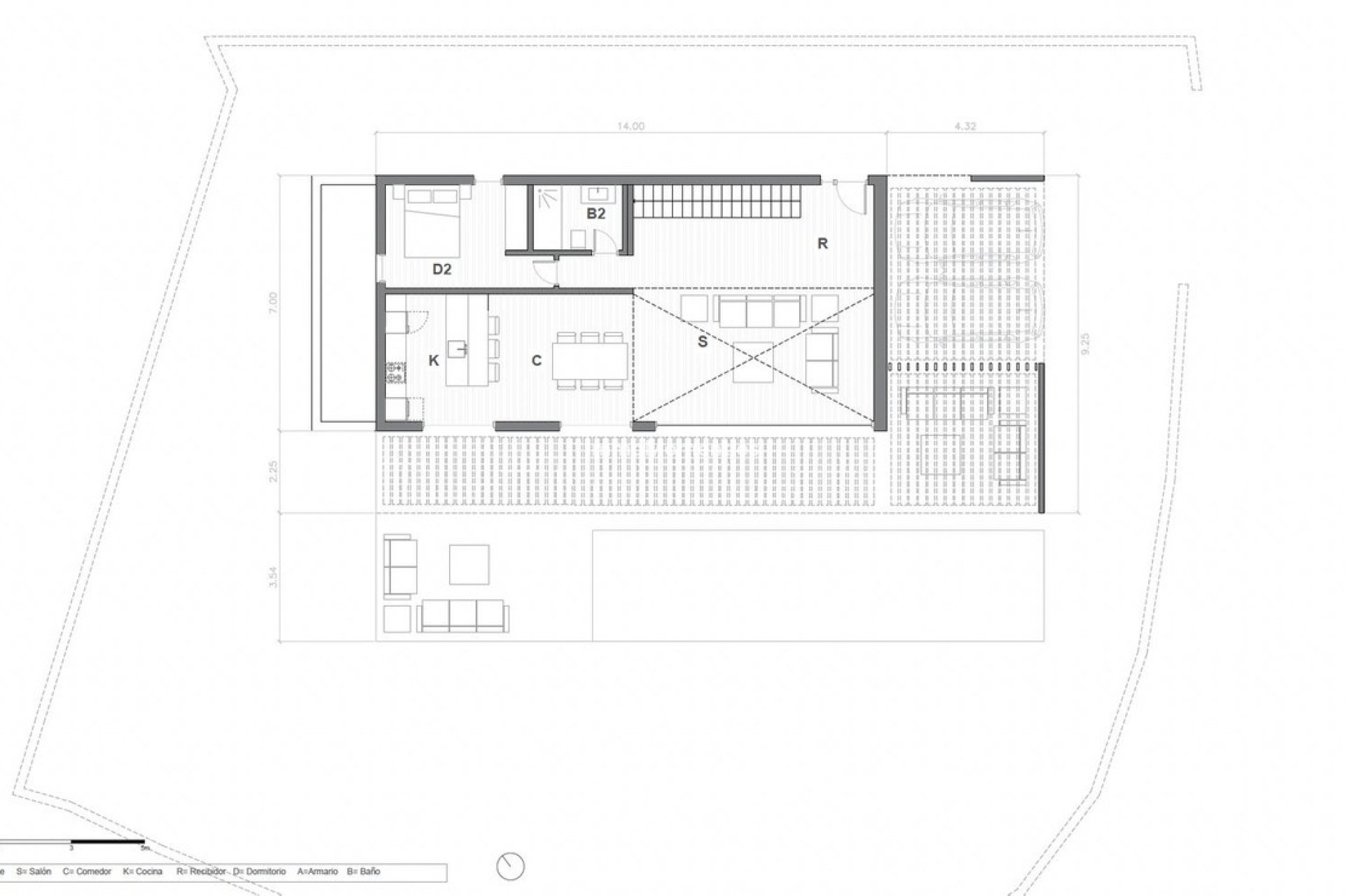
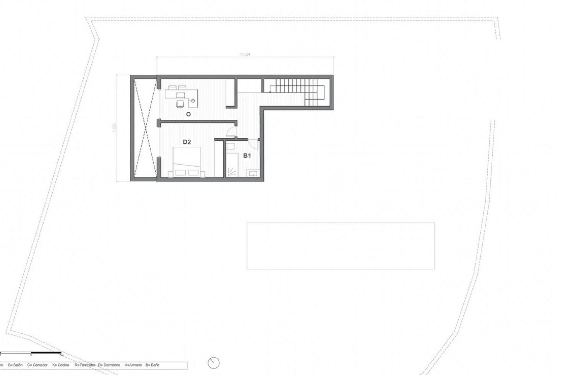
En este proyecto, el promotor valora el uso de materiales de la más alta calidad en la construcción y los acabados con la idea de lograr la máxima eficiencia y el máximo ahorro económico. Los luminosos interiores diáfanos de esta villa están inteligentemente distribuidos en 3 niveles. La villa estará equipada con un sofisticado sistema de aire acondicionado con el menor consumo energético. La principal ventaja de este sistema es la producción de agua caliente para calefacción, duchas, etc. La cocina estará totalmente equipada y con electrodomésticos de primeras marcas, incluyendo lavavajillas, microondas, frigorífico-congelador, campana extractora, campana de inducción y horno.
CARACTERÍSTICAS
Interior
• Aire Acondicionado
• Barbacoa
• Persianas
• Baño en-suite
• Electrodomésticos de Cocina
• Lavadero
• Cocina Abierta
• Ducha
• Trastero
• Terraza
• Electrodomésticos
Exterior
• Aparcamiento
• Jardín Privado
• Piscina Privada
Ubicación
• Aeropuerto (0-50 Km)
• Playa (1-5 Km)
• Vista al Mar
• Hermosa Vista de la Naturaleza
• Vista a la Montaña
• Vista a la Ciudad
• Bares / Restaurantes
Calefacción
• Aire Acondicionado
Orientación
• Suroeste