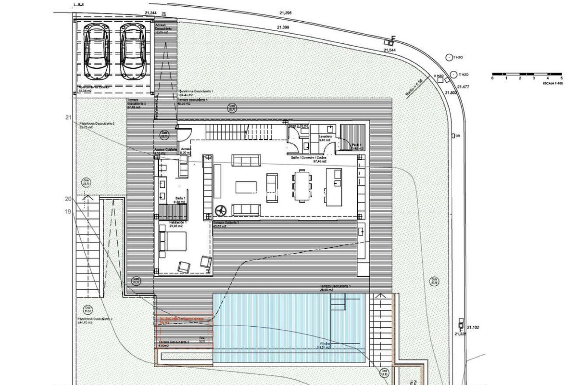
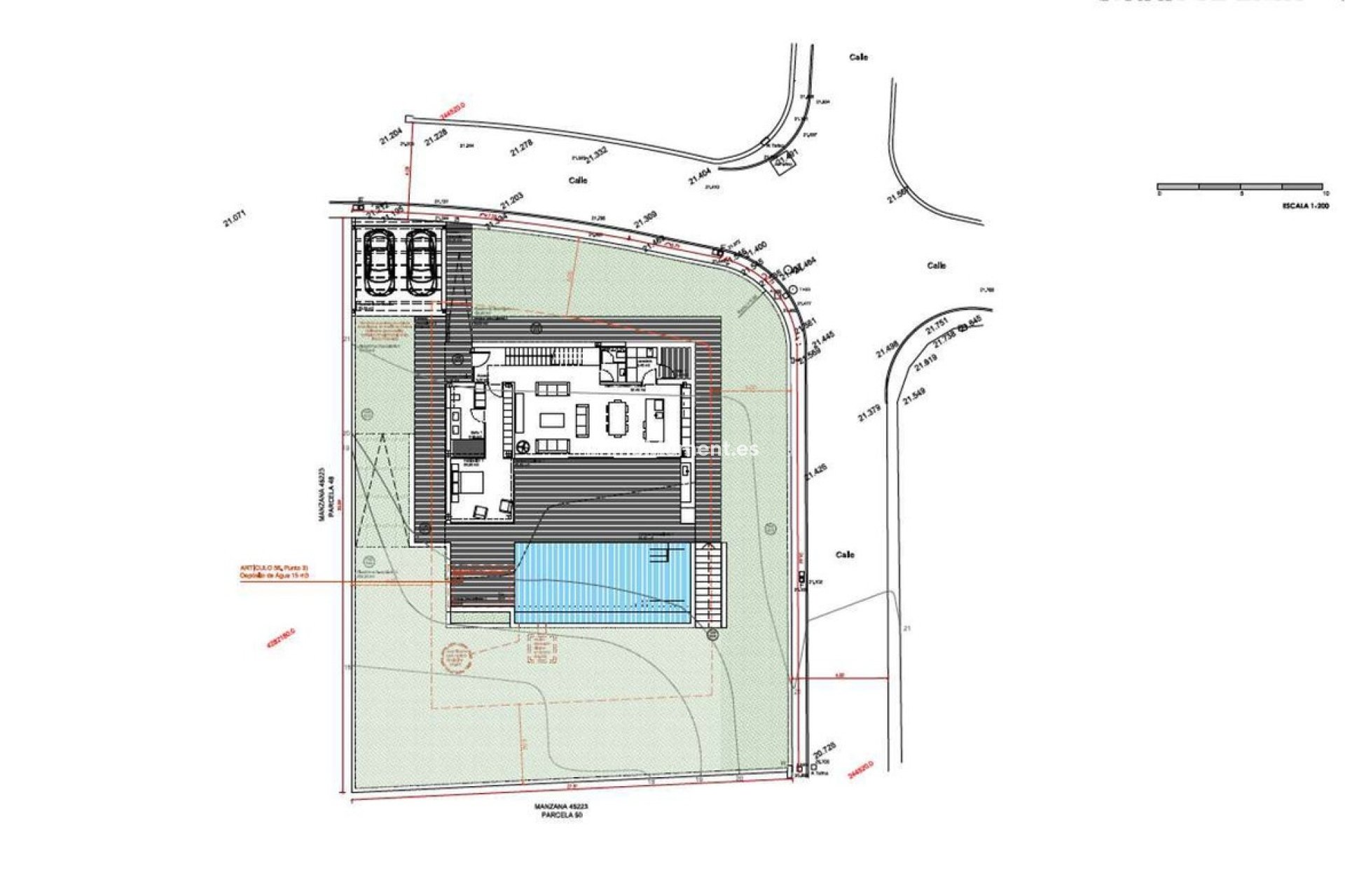
Esta villa moderna se encuentra en una zona privilegiada de Calpe, a tan sólo 15 minutos andando de la preciosa playa de arena blanca Poniente Arenal Bol y de todos los servicios. La propiedad se haya sobre una parcela de esquina de 920m2 y consta de 303m2 distribuidos en 2 plantas. Destacar de este fabuloso inmueble sus excelentes calidades y acabados y su funcional diseño.La planta baja alberga un amplio espacio diáfano (57,45m2) que comprende el salón comedor y la cocina moderna totalmente equipada. En esta planta se encuentra también un espacioso dormitorio (24m2) con cuarto de baño en suite, un aseo de cortesía y adyacente a la cocina un lavadero. La zona exterior goza de una magnífica piscina infinita de 59,55m2, porche con barbacoa integrada y terraza abierta para disfrutar del sol.La planta alta comprende 3 dormitorios con cuarto de baño en suite y acceso a una soleada terraza. La villa está equipada, entre otros de suelo radiante, sistema de climatización por conductos y pavimentos porcelánicos de gran formato. Cuenta con un aparcamiento cubierto de 33,35m2.