BAJADA DE PRECIO. De 695.000€ a 650.000€.
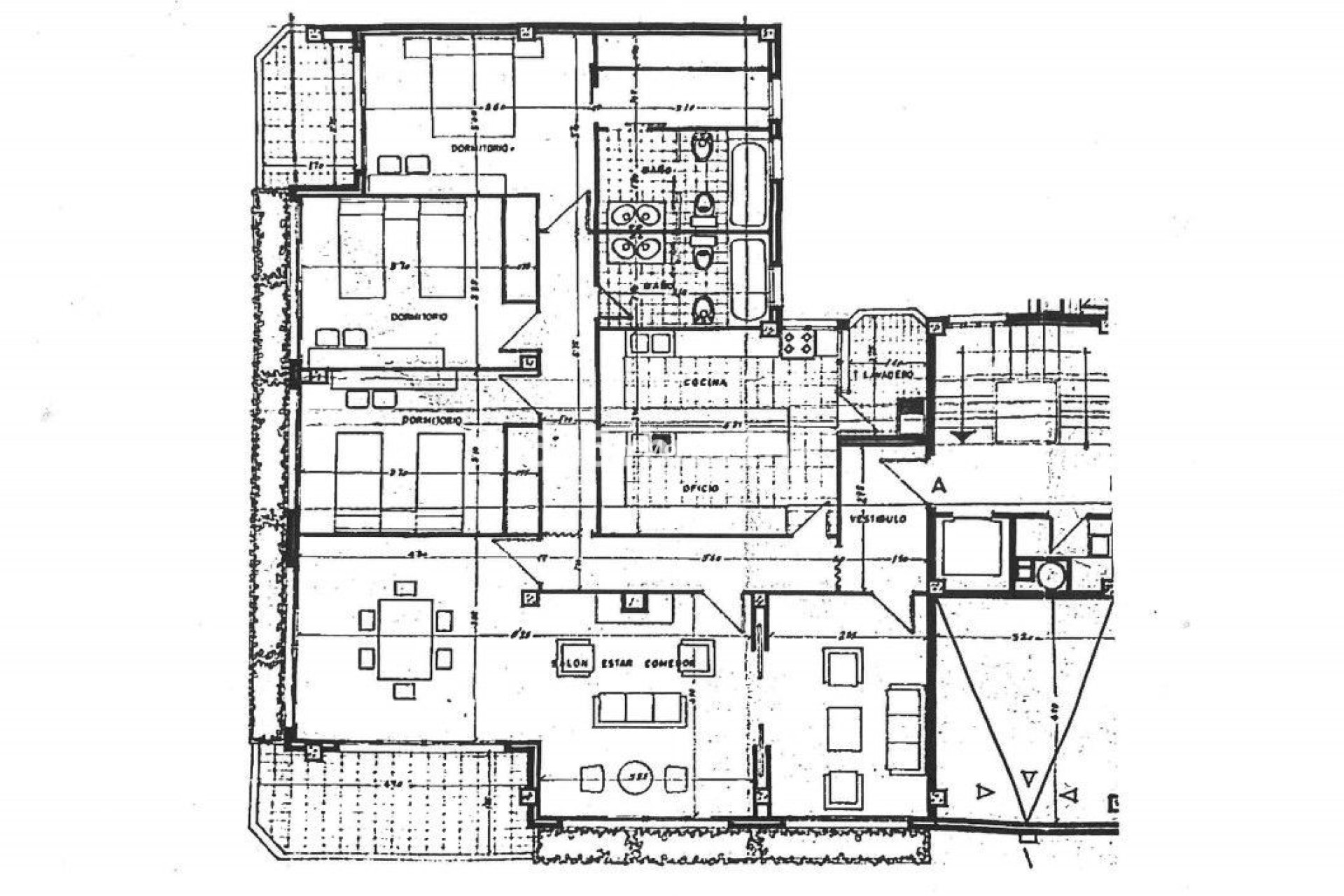
Espectacular piso de 217 m² situado en pleno corazón de Fuengirola, en una de las zonas más demandadas por su comodidad y acceso a todos los servicios. La vivienda, completamente exterior, ofrece una distribución amplia y funcional que garantiza luminosidad natural durante todo el día.
Se compone de cuatro habitaciones de generosas dimensiones (una utilizada como despacho), un salón con área de comedor diferenciada, ideal para reuniones y vida familiar, y dos baños completos. Dispone además de dos terrazas con acceso directo desde diferentes estancias, una cocina de gran tamaño con espacio para office, un vestidor tipo walk-in y un recibidor que aporta independencia y privacidad a la zona de día.
Los suelos de granito se mantienen uniformes en toda la propiedad, aportando durabilidad y un acabado de alta calidad. La vivienda destaca por su amplitud en cada estancia y por su orientación exterior, lo que permite disfrutar de ventilación cruzada y una excelente entrada de luz natural.
Gracias a su distribución y a la superficie disponible, existe la posibilidad de dividir la propiedad y obtener dos apartamentos independientes, lo que convierte esta vivienda en una opción muy atractiva para quienes buscan rentabilidad en una ubicación estratégica.
Incluye una plaza de garaje de 27 m² con capacidad para aparcar un vehículo y una motocicleta, un valor añadido en esta ubicación céntrica.
Situado a un paso de la playa y rodeado de todo tipo de servicios como comercios, transporte público, restauración y centros educativos, este piso representa una oportunidad única para quienes buscan amplitud, ubicación y comodidad en el centro de Fuengirola.