Impresionante Ático Dúplex con Vistas Panorámicas de Ensueño en Cancelada
3 Dormitorios | 2 Baños | 53m² de Terraza | Orientación Suroeste | Licencia Turística | Construido en 2021
Bienvenido a tu hogar soñado en el cielo Mediterráneo. Este espectacular ático dúplex, elegantemente decorado, se encuentra en la exclusiva zona de Cancelada, Estepona, a solo unos minutos en coche del vibrante estilo de vida de Marbella y del glamour de Puerto Banús.
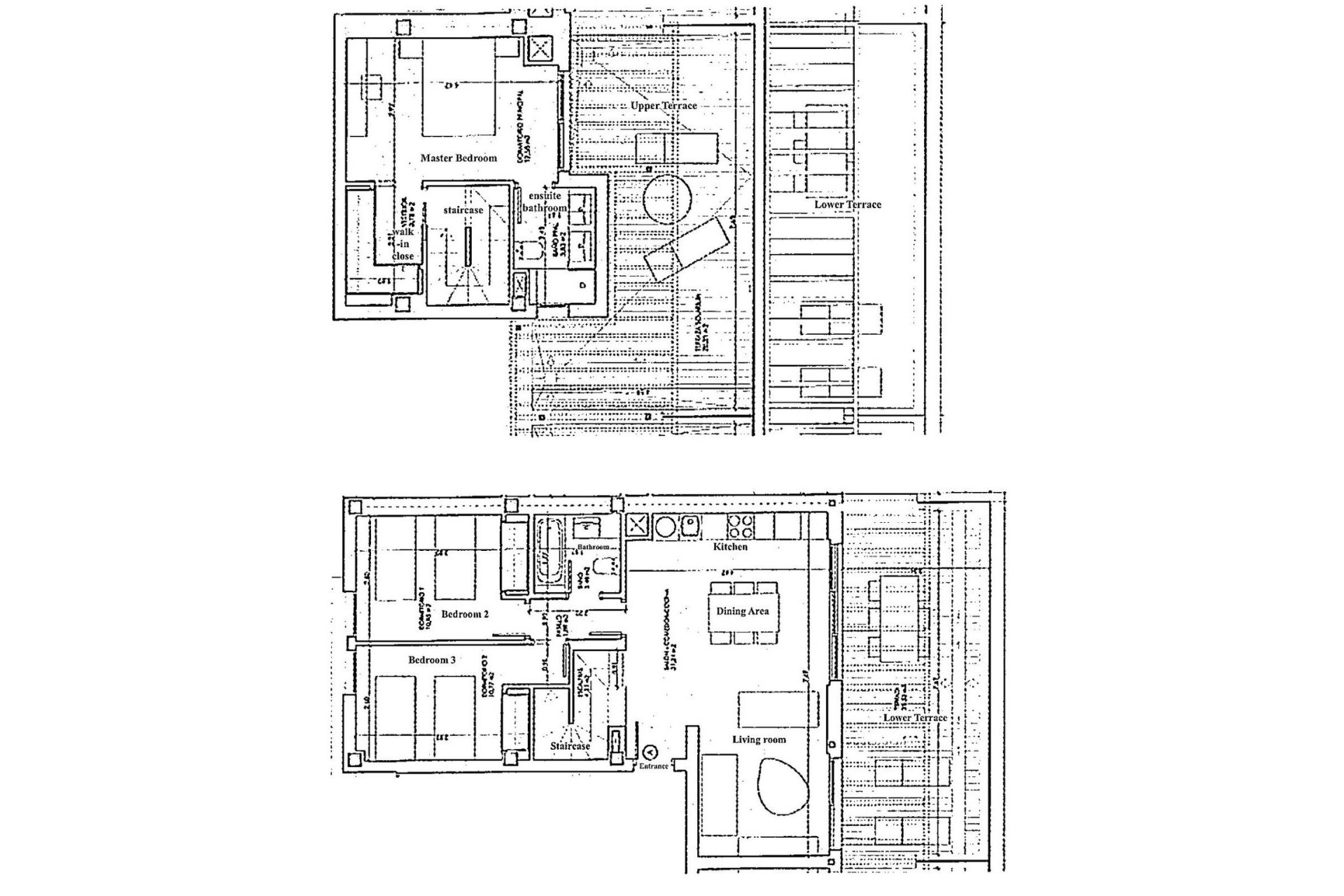
Esta elegante propiedad de 3 dormitorios y 2 baños, construida en 2021, presume de impresionantes vistas panorámicas sin obstáculos, que se extienden desde el resplandeciente Mar Mediterráneo hasta las majestuosas montañas de la Sierra Bermeja. En los días despejados, podrás contemplar incluso Gibraltar y la costa de África del Norte. Con 106m² construidos y 53m² de terrazas privadas distribuidas en dos niveles, cada rincón de esta vivienda ha sido diseñado para envolverte en luz, confort y lujo.
El corazón del hogar es un espacioso salón de planta abierta, que cuenta con una moderna cocina de alto brillo en color negro equipada con electrodomésticos Siemens, un amplio comedor y una acogedora zona de estar que se abre a una terraza bañada por el sol, perfecta para cenar al aire libre o disfrutar de cócteles al atardecer.
En la planta superior, la suite principal se convierte en tu refugio privado, con baño en suite, vestidor y acceso directo a la terraza solárium, ideal para practicar yoga al amanecer o relajarte bajo las estrellas.
Características Destacadas:
- Orientación suroeste con vistas al mar, la piscina, la montaña y panorámicas
- 53m² de espacios exteriores privados: 28m² de terraza principal + 25m² de solárium en la azotea
- Licencia turística vigente – ideal como inversión con alta rentabilidad demostrada
- Aire acondicionado integrado (frío/calor) con control individual por estancia
- Armarios empotrados en todos los dormitorios
- Plaza de garaje subterráneo y trastero privado, incluidos en el precio
- Comunidad cerrada con seguridad, concierge y estilo resort:
- Piscina exterior con solárium
- Piscina interior climatizada, sauna, baño turco, gimnasio y restaurante (acceso exclusivo al club social)
- Rodeado de prestigiosos campos de golf, clubes de tenis y pádel, y hoteles 5 estrellas como Villa Padierna
- Cerca de excelentes colegios internacionales y a poca distancia del encantador pueblo de Cancelada, con comercios y restaurantes
- A solo 10 minutos de Marbella y de las playas de la Nueva Milla de Oro
Ya sea que estés buscando una residencia permanente, una segunda vivienda de lujo o una inversión con alta rentabilidad vacacional, este ático ofrece estilo, ubicación y calidad de vida en una de las zonas más demandadas de la Costa del Sol.