Ático impresionante con terrazas excepcionales y vistas panorámicas cerca de Benalmádena Pueblo
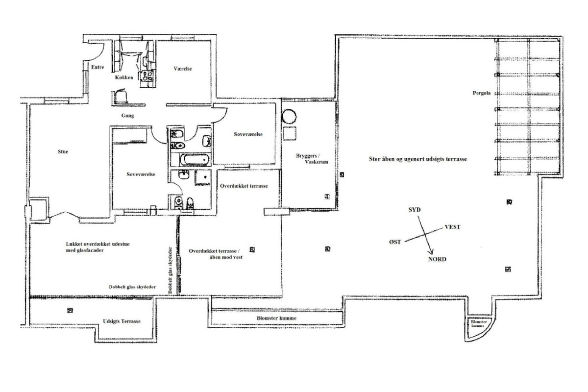
Este ático ofrece una combinación poco común de amplitud, privacidad y vistas impresionantes tanto del mar Mediterráneo como de las hermosas montañas andaluzas. Con 90 m² de espacio interior y unos enormes 219 m² de terraza, esta vivienda está diseñada para disfrutar de la vida al aire libre.
La propiedad cuenta con tres amplios dormitorios, dos baños modernos, una cocina más reciente de la marca Designa y un gran y luminoso salón acristalado de aluminio con ventanas de doble cristal, de 24 m² en total. La terraza rodea todo el apartamento, ofreciendo infinitas posibilidades para relajarse, tomar el sol y comer al aire libre con unas vistas espectaculares.
Una terraza de mañana de 6 m²
Una terraza resguardada de 23 m²
Una gran terraza con vistas de 360 grados, en total 154 m²
La propiedad incluye 2 plazas de aparcamiento privadas en garaje subterráneo y 1 trastero, situados junto al ascensor que le lleva directamente al apartamento.
Junto a la terraza se encuentra un lavadero de 12 m², que incluye lavadora/secadora nuevas y un taller con numerosos armarios y espacio de trabajo.
La vivienda se ubica en una urbanización con 2 piscinas comunitarias y pista de pádel, a tan solo un corto paseo del encantador Benalmádena Pueblo, donde encontrará acogedoras cafeterías, restaurantes y tiendas.
Esta es una oportunidad única de adquirir un ático con un espacio exterior excepcional, perfecto para quienes desean combinar una vida confortable con lo mejor del clima y estilo de vida de la Costa del Sol.
Contáctenos hoy para obtener más información o concertar una visita.