Située dans un environnement paisible, avec une magnifique vue dégagée sur le village d'Alhaurín el Grande, cette superbe maison de plain-pied offre un cadre de vie privilégié au cœur de la campagne andalouse.
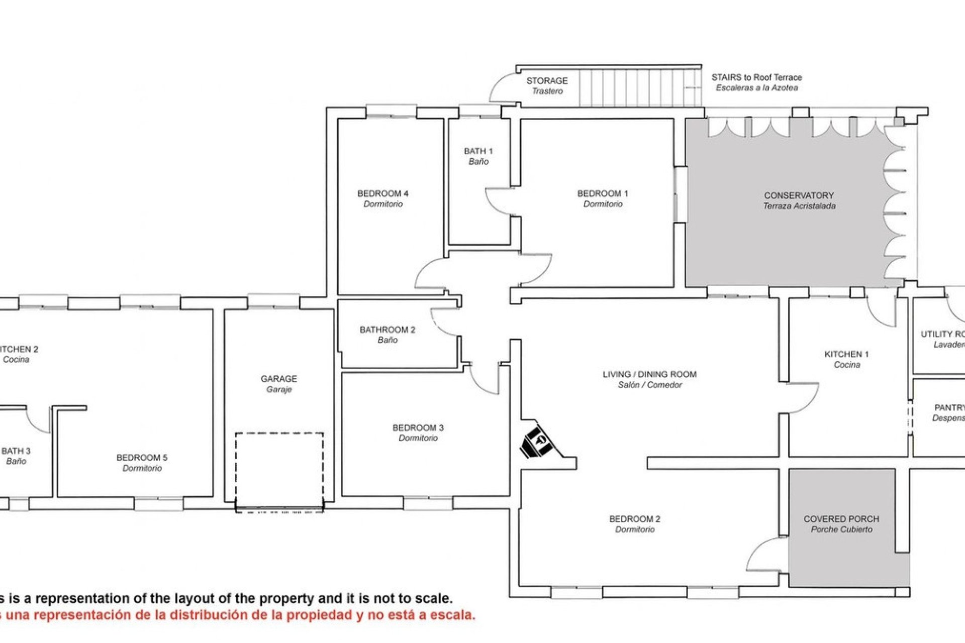
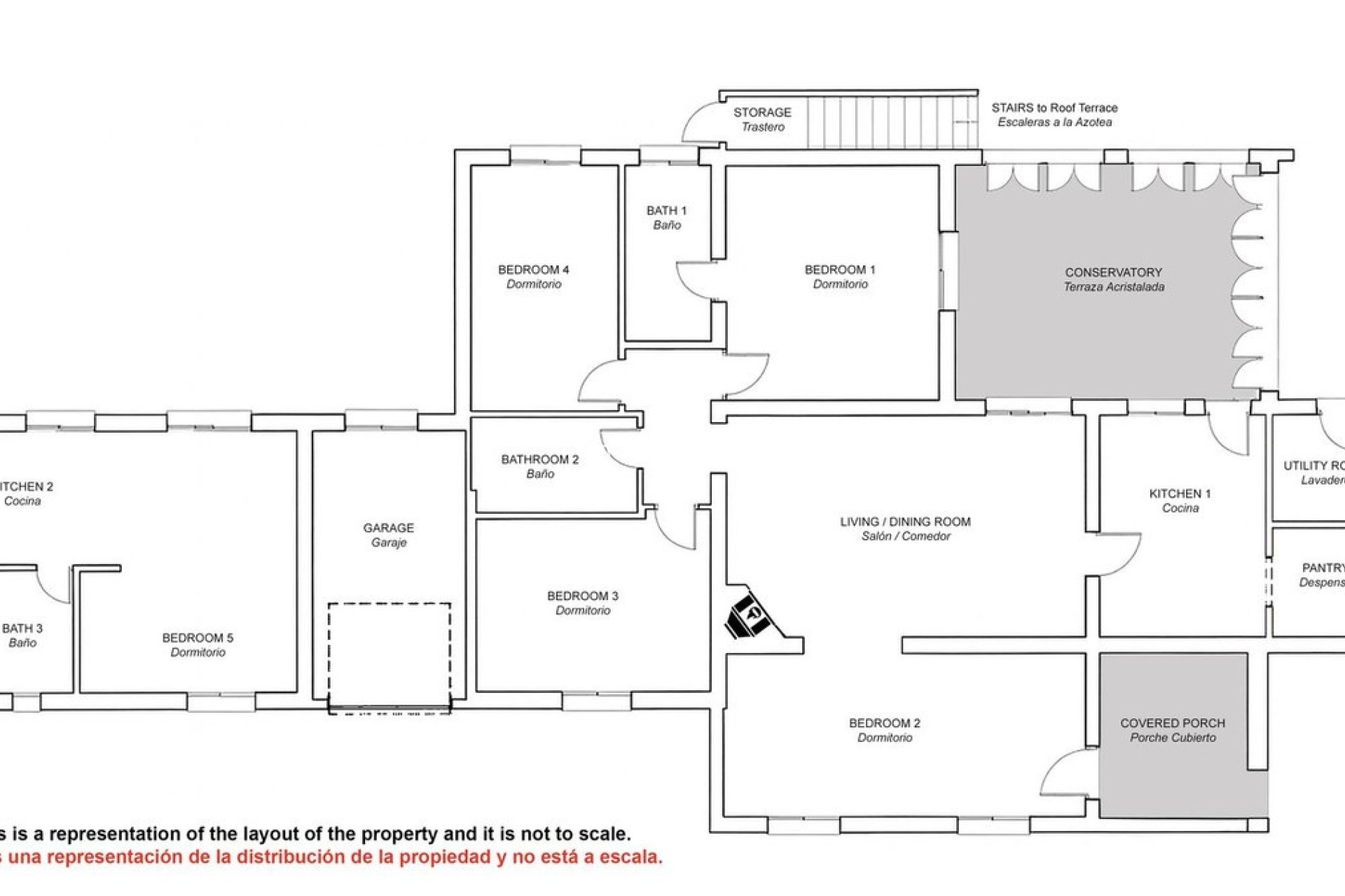
La maison principale se compose de :
• Une cuisine entièrement équipée avec accès direct à une grande terrasse
• Un cellier indépendant
• Un lumineux salon
• Une salle à manger avec cheminée, idéale pour des soirées chaleureuses
• 3 chambres confortables
• 2 salles de bain, dont une privative dans la chambre principale
• Une buanderie séparée
✨ Un véritable atout : la véranda
La cuisine s'ouvre sur une spacieuse terrasse fermée type véranda, véritable pièce de vie supplémentaire. Utilisée comme salle à manger, elle peut être ouverte en été pour profiter pleinement de l'extérieur, permettant ainsi un usage agréable tout au long de l'année.
Ses grandes baies vitrées offrent une vue imprenable sur la piscine, le jardin et la campagne environnante.
???? Appartement d'invités indépendant
La propriété dispose également d'un charmant appartement pour invités comprenant une kitchenette et une salle de bain — idéal pour recevoir famille et amis en toute intimité ou envisager un revenu locatif.
???? Potentiel d'agrandissement
À l'arrière de la maison, un grand débarras très pratique pour le matériel de jardin peut être intégré à l'habitation pour augmenter la surface habitable selon vos besoins.
De plus, la maison peut retrouver sa configuration d'origine (3 chambres, salle à manger séparée et salon distinct), offrant ainsi une grande flexibilité d'aménagement.
???? Localisation idéale :
• 4,5 km du centre commercial La Trocha
• 6 km du centre d'Alhaurín el Grande
• Environ 1 km de la A355
• 30 minutes de l'aéroport de Málaga
Cette propriété combine tranquillité, confort et proximité des commodités, un équilibre parfait pour une résidence principale ou secondaire sous le soleil andalou.