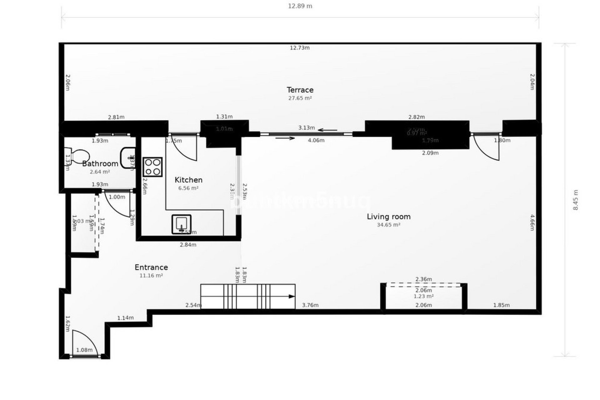
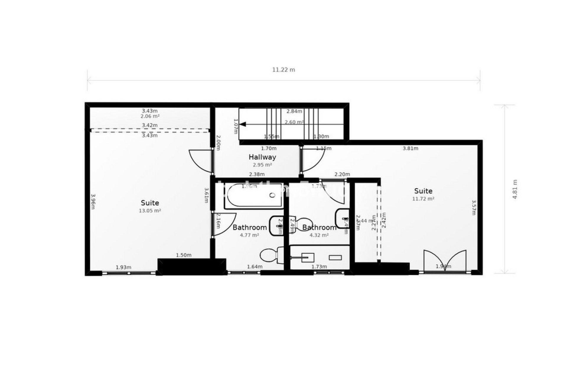
Découvrez ce superbe appartement en duplex au 7ᵉ étage situé dans la magnifique zone de Playa Arenal-Bol, Calpe. Ce bien, construit en 2023, offre une surface habitable généreuse de 117 m2 et est parfait pour ceux qui recherchent confort et luxe. L'appartement dispose de deux spacieuses chambres doubles et de deux salles de bains modernes, ce qui est idéal pour les familles ou les invités.~~Cette propriété particulière est complète avec des équipements supplémentaires tels qu'un stationnement privé, un accès à une piscine rafraîchissante et une terrasse accueillante où vous pourrez profiter de la vue imprenable sur la mer.~~L'emplacement en dit long : à seulement 500 mètres de la magnifique plage Arenal où vous pouvez vous détendre sous le soleil ; le centre animé est également à seulement 650 mètres, rendant tout à portée de main - magasins, restaurants, cafés, etc. ! Cela rend cette propriété non seulement attrayante comme résidence permanente, mais également parfaitement adaptée à la location de vacances. Ne manquez pas cette chance d'investir dans votre maison de rêve sur la Costa Blanca !