Terrain en première ligne du terrain de golf La Resina, au sein de l'urbanisation. A mi-chemin entre Marbella et Estepona, un quartier résidentiel parfait pour échapper à l'agitation, tout en ayant tout à 10 minutes en voiture. Parfait pour construire une villa familiale. Opportunité d'investissement pour les promoteurs.
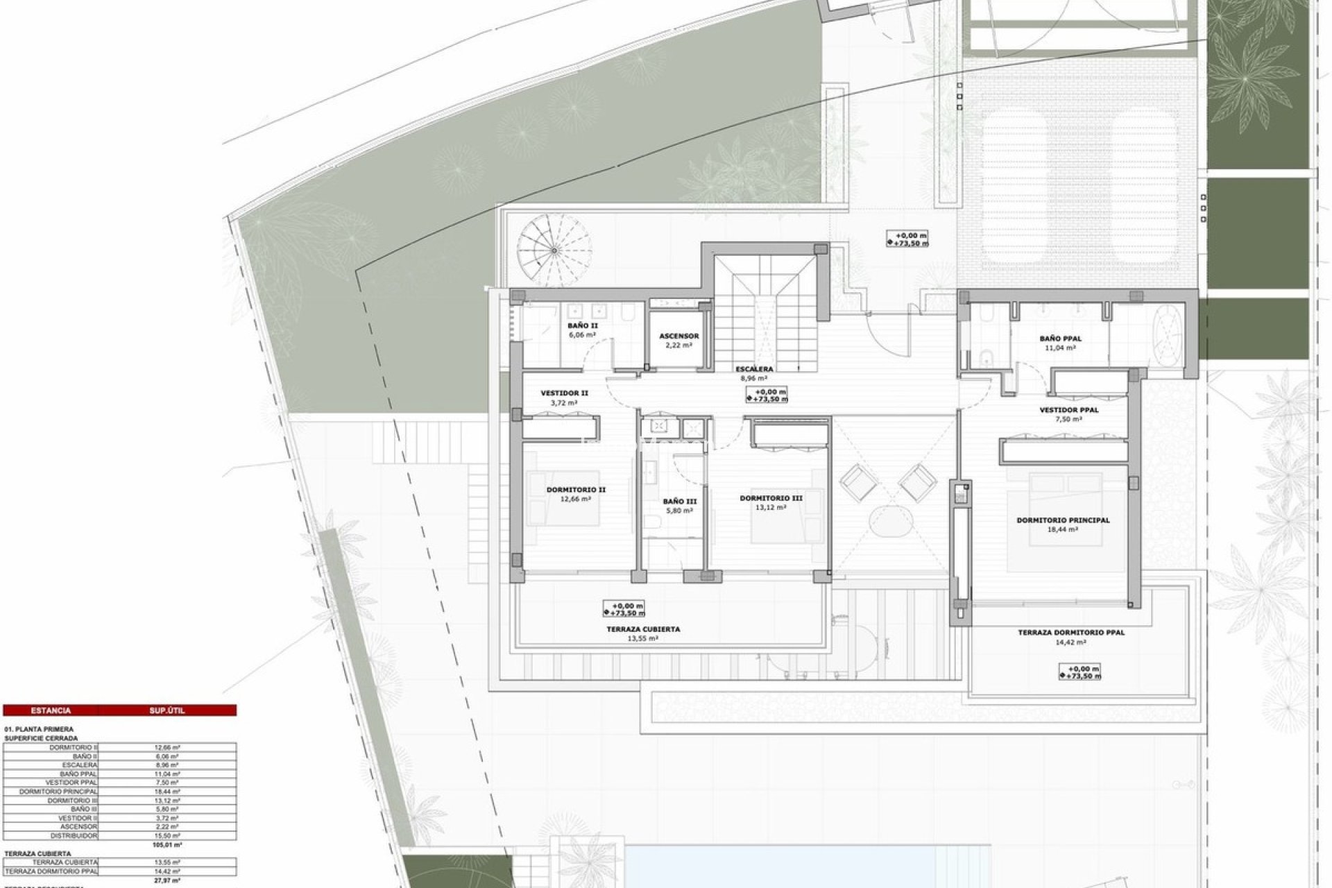
Projet prêt à construire avec projet d'exécution en place pour une villa de luxe de 575 m² construits + 240 m² de terrasses.
- Constructibilité 0,25
- Occupation 30%.
- PB+1 (7m).
- 3 PARCELLES DISPONIBLES.
La villa a été méticuleusement conçue pour offrir un maximum de confort et de style. Avec des espaces ouverts spacieux, de hauts plafonds et de grandes fenêtres, les maisons sont inondées de lumière naturelle, créant une atmosphère confortable et sophistiquée. Des cuisines modernes, des salles de bains luxueuses et des détails de haute qualité dans tous les coins garantissent que votre maison est le reflet de votre succès et de votre bon goût.
Découvrez le luxe et la tranquillité dans les nouvelles villas de La Resina Golf à Estepona
Situées dans l'une des enclaves les plus prestigieuses de la Costa del Sol, nos villas de luxe exclusives offrent une expérience de vie inégalée à proximité du célèbre parcours de golf La Resina à Estepona. Ce quartier est synonyme d'élégance, de confort et d'une qualité de vie supérieure, idéal pour ceux qui recherchent une maison alliant luxe et sérénité.
Environnement exceptionnel
Le terrain est situé dans un environnement naturel spectaculaire, entouré de paysages luxuriants et de vues panoramiques sur la Méditerranée. Le terrain de golf de La Resina, connu pour sa beauté et sa conception stimulante, offre aux résidents la possibilité de pratiquer ce sport dans un cadre de première classe. En outre, la proximité de la ville animée d'Estepona permet d'accéder à une large gamme de services, allant des restaurants gastronomiques et des boutiques exclusives aux écoles internationales et aux centres médicaux haut de gamme.