Encantador Ático de Un Dormitorio con Vistas Panorámicas en Elviria, Marbella
Este ático independiente de un dormitorio, ubicado en las tranquilas colinas de Elviria, Marbella, ofrece impresionantes vistas panorámicas al mar, la montaña y el campo de golf. Desde la cocina hasta la amplia terraza, cada rincón invita a relajarse y disfrutar del sol, con total privacidad y tranquilidad. Ya sea que busques un refugio vacacional o un lugar sereno para vivir todo el año, este ático lo tiene todo.
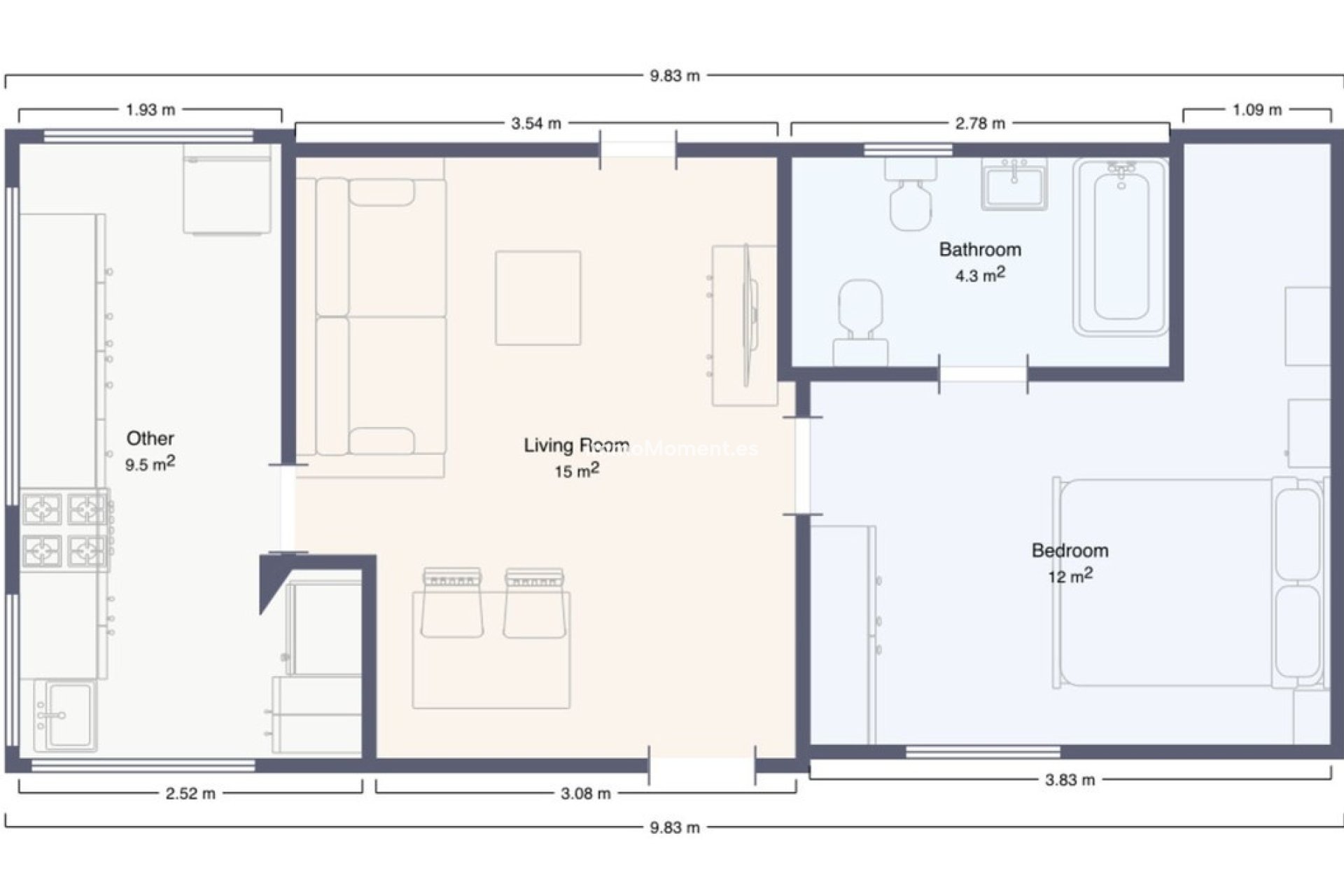
El apartamento cuenta con un diseño minimalista y confortable. Dispone de un baño completo con ducha y bañera. La cocina independiente no solo optimiza el espacio en cada estancia, sino que también brinda la oportunidad de personalizarla y sentirte en casa desde el primer momento. El amplio dormitorio ofrece espacio más que suficiente para organizar tus pertenencias, y el salón permite colocar cómodamente un sofá y una mesa para cuatro personas.
Tanto en invierno como en verano, el confort está garantizado gracias al aire acondicionado central con bomba de calor. El calentador de agua electrónico instantáneo proporciona agua caliente al instante, ideal para disfrutar de un baño cálido en cualquier momento. El edificio también ofrece opciones de internet de alta velocidad mediante fibra óptica, perfecto para trabajar desde casa o ver contenido sin interrupciones.
La gran terraza es perfecta para vivir al aire libre: comer al fresco, tomar café por la mañana, disfrutar de una copa de vino o un cóctel, descansar en una hamaca o incluso echarse una siesta al sol gracias al mobiliario exterior versátil.
El acceso al ático es directo mediante ascensor desde el garaje subterráneo hasta la puerta principal. Al ser el único apartamento en la planta superior, disfrutarás de una privacidad inigualable. La propiedad se vende con una amplia plaza de garaje subterránea y un trastero para mayor comodidad.
Ubicado en una urbanización bien cuidada, rodeada de jardines frondosos y árboles maduros, el complejo cuenta con tres piscinas comunitarias, siendo la más grande justo frente al apartamento —visible incluso desde la cocina.
La playa y los servicios están a solo 5 minutos en coche. Elviria ofrece una amplia variedad de restaurantes, cafeterías y tiendas para todos los gustos y presupuestos. El Centro Comercial cercano cuenta con supermercados, farmacias, bares, alquiler de coches y mucho más. Es fácilmente accesible —a solo 4 minutos en coche o a unos 15–20 minutos caminando cuesta abajo. También hay transporte público disponible, con paradas de taxi permanentes y autobuses en la misma zona.
Elviria está idealmente situada a solo 10 km del centro de Marbella y del centro comercial La Cañada, y a 15 km de Puerto Banús. Los amantes del golf estarán encantados de saber que el campo de golf Santa María está a solo 5 minutos en coche, y hay muchos más campos a lo largo de toda la Costa del Sol.