Charming One-Bedroom Penthouse with Panoramic Views in Elviria, Marbella
This fully independent one-bedroom penthouse, located in the tranquil hills of Elviria, Marbella, offers stunning panoramic views of the sea, mountains, and golf course. From the kitchen to the spacious terrace, every corner invites you to relax and soak in the sun, with total privacy and peace. Whether you're looking for the perfect holiday escape or a serene place to live year-round, this penthouse has it all.
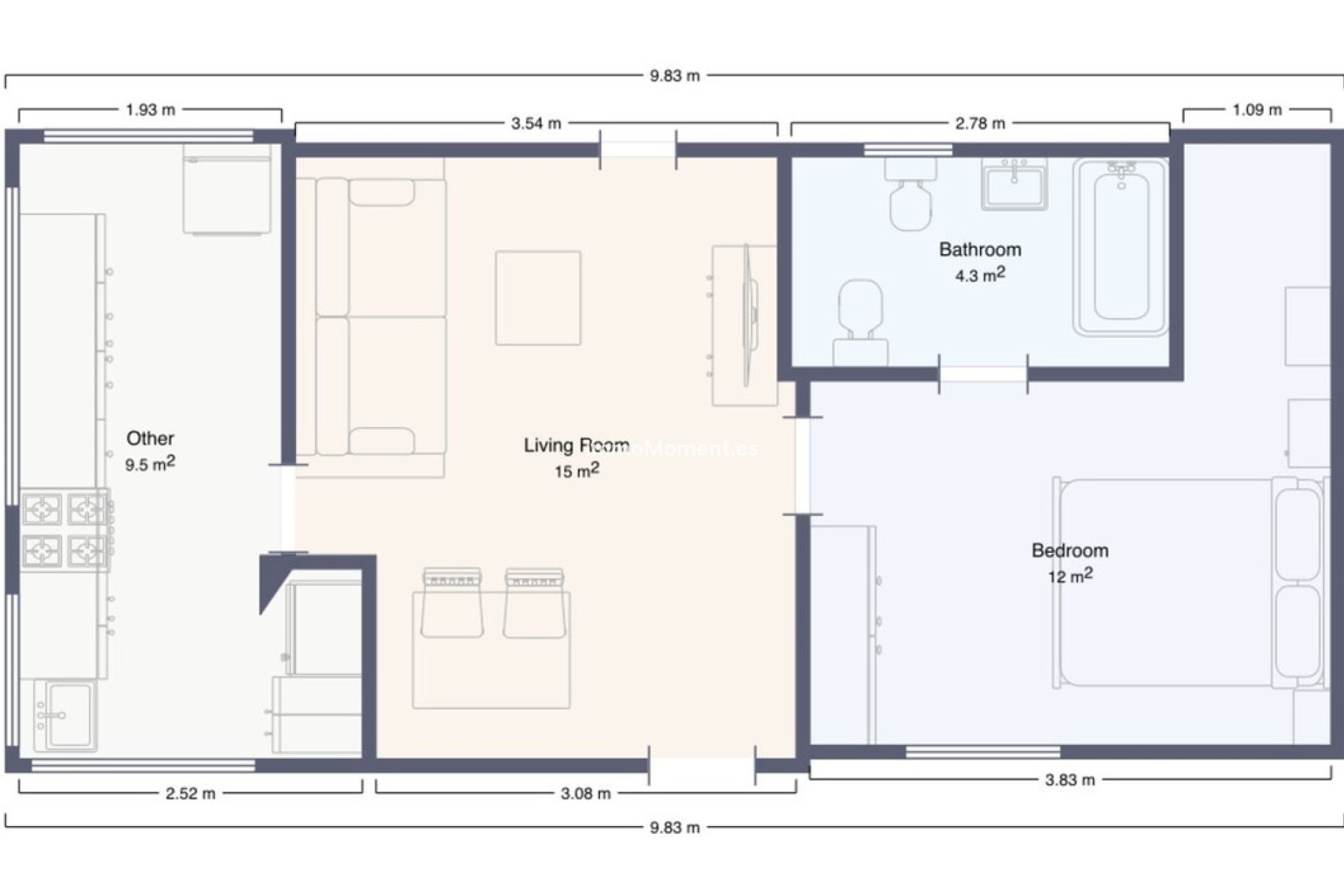
The apartment features a minimalist and comfortable design. It includes a full bathroom with both a shower and bathtub. The separate kitchen not only maximizes space in each area but also offers the opportunity to customize it and make it feel like home from day one. The generous bedroom has ample room to organize your belongings, and the living area easily accommodates a sofa and a dining table for four.
Regardless of the season, your comfort is guaranteed with central air conditioning and heating. An instantaneous electronic water heater provides hot water on demand, perfect for a warm bath any time of day. The building also offers high-speed fiber optic internet—ideal for remote work or streaming without interruptions.
The large terrace is perfect for outdoor living: dine alfresco, sip your morning coffee, enjoy a glass of wine or cocktail, relax in a hammock, or even nap under the sun thanks to the versatile outdoor furniture.
Access to the penthouse is seamless, with a lift that takes you directly from the underground garage to your front door. As the only apartment on the top floor, you'll enjoy unmatched privacy. The property is sold with a spacious underground parking space and a storage room for your convenience.
Set in a well-maintained urbanisation surrounded by lush gardens and mature trees, the complex features three communal swimming pools—the largest of which is directly in front of the apartment and visible from the kitchen.
The beach and local amenities are just a 5-minute drive away. Elviria offers a wide range of restaurants, cafés, and shops, catering to all tastes and budgets. The nearby Commercial Centre includes supermarkets, pharmacies, bars, car rentals, and more. It's easily accessible—just a 4-minute drive or a pleasant 15–20-minute walk downhill. Public transport is also available, with permanent taxi stands and bus stops in the same area.
Elviria is ideally located just 10 km from Marbella's city center and La Cañada shopping mall, and 15 km from Puerto Banús. Golf lovers will appreciate that the Santa María Golf Course is only a 5-minute drive away, with many more golf courses spread throughout the Costa del Sol.