Parcela en primera línea del campo de Golf La Resina, dentro de la urbanización. A medio camino entre Marbella y Estepona, una zona residencial perfecta para escapar del bullicio, pero teniendo todo a 10 minutos en coche. Perfecta para construir una villa familiar. Oportunidad de inversión para promotores.
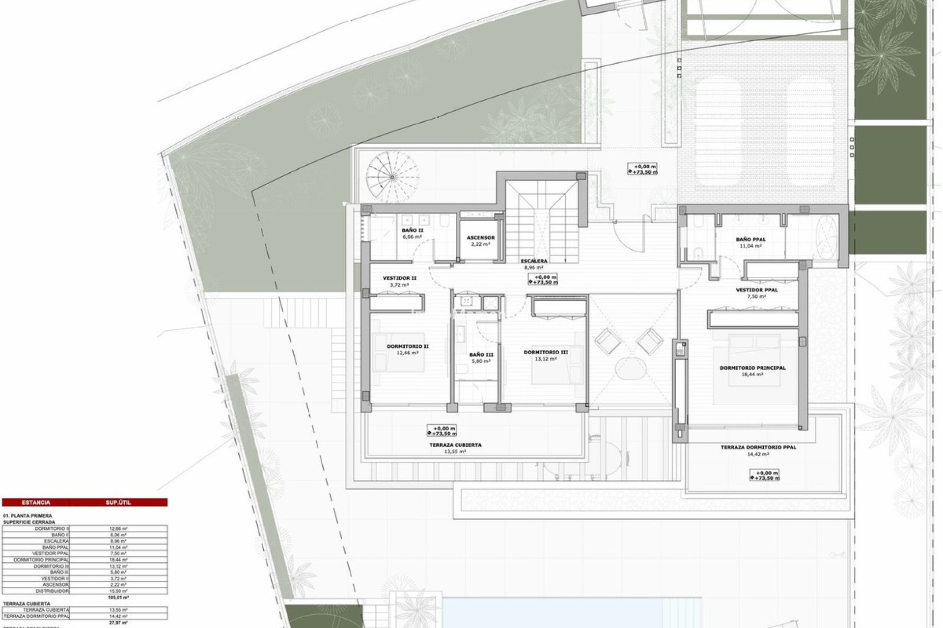
Proyecto listo para construir con proyecto de ejecución en vigor para una villa de lujo de 575 m2 construidos + 240m2 de terrazas.
- Edificabilidad 0,25
- Ocupación 30%.
- PB+1 (7m).
- 3 PARCELAS DISPONIBLES.
La villa ha sido meticulosamente diseñada para ofrecer el máximo confort y estilo. Con amplias zonas abiertas, techos altos y grandes ventanales, las viviendas están inundadas de luz natural, creando un ambiente acogedor y sofisticado. La moderna cocina, los lujosos cuartos de baño y los detalles de alta calidad en cada rincón garantizan que su hogar sea un reflejo de su éxito y buen gusto.
Descubra el lujo y la tranquilidad en las nuevas villas de La Resina Golf en Estepona
Situadas en uno de los enclaves más prestigiosos de la Costa del Sol, nuestras exclusivas villas de lujo ofrecen una experiencia de vida inigualable junto al renombrado campo de golf La Resina Golf en Estepona. Esta zona es sinónimo de elegancia, confort y una calidad de vida superior, ideal para aquellos que buscan un hogar que combine lujo y serenidad.
Entorno excepcional
La parcela se encuentra en un entorno natural espectacular, rodeada de exuberantes paisajes y vistas panorámicas del Mediterráneo. El campo de golf La Resina, conocido por su belleza y desafiante diseño, ofrece a los residentes la oportunidad de disfrutar de este deporte en un entorno de primera clase. Además, la proximidad a la vibrante ciudad de Estepona proporciona acceso a una amplia gama de servicios, desde restaurantes gourmet y boutiques exclusivas hasta colegios internacionales y centros médicos de alta gama.