Exquise Appartement in Mansion Club, de Prestigieuze Golden Mile van Marbella
Gelegen in het exclusieve Mansion Club aan de Golden Mile van Marbella, biedt dit prachtige appartement op de eerste verdieping luxe in een van de meest prestigieuze woonwijken aan de Costa del Sol.
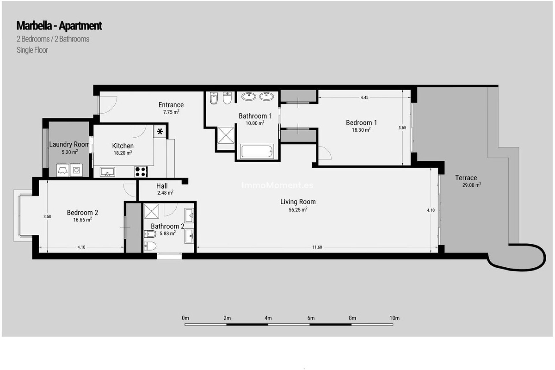
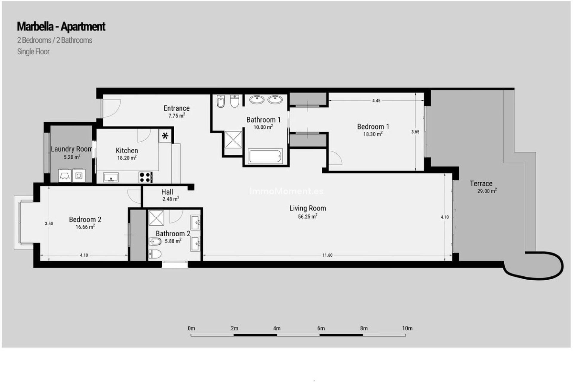
Dit ruime en prachtig gerenoveerde appartement beschikt over een gloednieuwe keuken, op maat gemaakte inbouwkasten en een hoogwaardig airconditioningsysteem. De indeling omvat een uitnodigende hal, een grote open woon- en eetkamer, een volledig uitgeruste keuken, een hoofdslaapkamer met en-suite badkamer en een gastenslaapkamer met een privéterras en een eigen ruime badkamer. Het hoogtepunt van de woning is het royale, op het zuiden gelegen terras van 41 m², volledig voorzien van glazen wanden voor optimaal comfort het hele jaar door. Extra luxe voorzieningen zijn onder meer vloerverwarming in het gehele appartement.
Deze uitzonderlijke woning beschikt over een privéparkeerplaats en een indrukwekkende berging van 50 m²—een zeldzame en waardevolle toevoeging.
Mansion Club biedt bewoners een ongeëvenaarde levensstijl met tropisch vormgegeven zwembaden, een privéclubhuis met een verwarmd binnenzwembad, een fitnessruimte, sauna en Turks bad. Deze beveiligde gemeenschap staat bekend om haar onberispelijke 24/7 beveiliging, wat zorgt voor gemoedsrust en exclusiviteit.
Een perfecte keuze voor wie op zoek is naar luxe, comfort en een onovertroffen locatie aan de prestigieuze Golden Mile van Marbella.
Marbella, wereldwijd bekend om haar luxueuze levensstijl, gouden stranden en bruisende sociale scene, is de thuisbasis van de beroemde Golden Mile—een strook met ultra-exclusieve woningen, vijfsterrenhotels, gastronomische restaurants en designerboetieks, allemaal op slechts enkele minuten van Puerto Banús en het historische oude centrum van Marbella. Binnen dit bevoorrechte gebied ligt Sierra Blanca, een elitegemeenschap die bekend staat om haar prachtige berglandschap, panoramisch zeezicht en eersteklas beveiliging, waardoor het een van de meest gewilde adressen in Zuid-Europa is.