Exclusief luxe penthouse met 4 slaapkamers in Golf Resort Torrequebrada. Volledig gerenoveerd met een elegant en modern design en een panoramisch uitzicht op zee.
Overzicht
Welkom in dit uitzonderlijke luxe penthouse met 4 slaapkamers in Golf Resort Torrequebrada, met de hoogste beveiliging in de omgeving, 5 zwembaden, volledige privacy en receptieservice. Dit is meer dan een huis – het is een verfijnde levensstijl die privacy, comfort en veiligheid biedt.
Deze unieke residentie is het afgelopen jaar volledig gerenoveerd. Alles is aangepakt: de plattegrond is aangepast, er zijn nieuwe vloeren, muren, plafonds, deuren, ramen, kasten, keuken en badkamers geplaatst. Het appartement is uitgerust met hoogwaardige apparatuur en talloze upgrades. Overal zijn hoogwaardige materialen gebruikt en het appartement is elegant ingericht met designmeubelen van topkwaliteit. Het biedt 4 ruime slaapkamers, 3 badkamers (waarvan één en-suite) en een fantastisch uitzicht op zee vanaf 2 van de 3 ruime terrassen.
De spectaculaire buitenruimte is een waar hoogtepunt – met een heerlijke loungehoek, een eethoek en een buitenkeuken met barbecue. Het terras biedt volledige privacy; niemand kan u hier zien. Tegelijkertijd geniet u van een prachtig uitzicht op de zee, heel Benalmadena en zelfs tot aan de Sierra Nevada.
Op korte loopafstand vindt u het strand, winkels, restaurants en bars.
Kenmerken
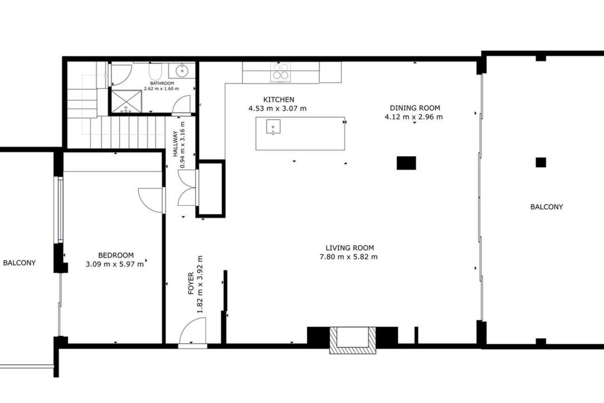
Type: Luxe duplex penthouseSlaapkamers: 4Badkamers: 3Oriëntatie: ZuidBinnenruimte: 186 m²Terras: 95 m²Totaal: 281 m²Garage: 1 ondergrondse parkeerplaats
Interieurdetails
Eerste verdieping: Entree: Indrukwekkende en uitnodigende hal die de toon zet voor de woning.
Woonkamer: Ruim en licht met kamerhoge glazen deuren die toegang geven tot het terras. Royale zit- en eetruimte, ontworpen voor stijlvol entertainment en ontspannen wonen. Inbouwmeubels en gashaard.
Keuken: Op maat gemaakte open keuken van superieure kwaliteit, volledig uitgerust met hoogwaardige apparatuur, waaronder een koelkast/vriezer, oven, magnetron, vaatwasser en wijnkoeler.
Slaapkamer 1: Ruime tweepersoonsslaapkamer met inbouwkasten, 2 werkplekken en veel natuurlijk licht. Toegang tot een groot terras met uitzicht op de bergen en het zwembad.
Badkamer: Stijlvolle badkamer met inloopdouche, wastafel, toilet en opbergruimte.
Tweede verdieping:
Slaapkamers 2 & 3: Ruime slaapkamers met inbouwkasten en veel natuurlijk licht. Directe toegang tot een groot terras met uitzicht op zee.
Gastenbadkamer: Stijlvolle badkamer met inloopdouche, dubbele wastafel, toilet en opbergruimte.
Master Suite: Een grote, privé suite met een inloopkast, grote ramen en directe toegang tot het terras.
En-suite badkamer: Elegant design met dubbele wastafel, grote inloopdouche, toilet en op maat gemaakte opbergruimte.
Extra comfort: Geïntegreerde airconditioning (warm en koud), alarmsysteem, glasvezelinternet, veiligheidsdeurslot.
Meubilair: Wordt gemeubileerd verkocht met een zorgvuldig samengesteld, hoogwaardig interieur – luxe wonen, direct klaar om in te trekken.
Voorzieningen in de gemeenschap
Beveiliging: Hoogwaardige beveiliging met 24/7 bewaking, receptie ter plaatse, dagelijkse beveiligingsrondes en vele camera's.
Faciliteiten: Vijf zwembaden, een kinderspeelplaats en regelmatig onderhouden groene zones.
Toegankelijkheid: Lift die vanuit de garage direct toegang biedt tot de woning.
Locatievoordelen
Nabijheid van voorzieningen: Op loopafstand van het strand, winkels, apotheek en restaurants. Dicht bij ziekenhuizen en diverse internationale scholen. Direct tegenover de golfbaan van Torrequebrada.
Geschikt voor gezinnen: Veilige villawijk met brede wegen, trottoirs en groene zones, perfect om met de hond te wandelen en een familiewandeling te maken.
Een rustige omgeving met uitstekende bereikbaarheid:
10 minuten lopen naar het strand.
15 minuten naar de internationale luchthaven van Málaga
Op loopafstand van restaurants, voorzieningen en openbaar vervoer
Met meer dan 300 dagen zon per jaar is Golf Resort Torrequenrada een van de meest gewilde lifestylebestemmingen aan de Costa del Sol.
Deze residentie biedt een uitstekende kans – even geschikt voor permanent wonen, een exclusief vakantieverblijf of een premium investering in een zeer gewilde regio.
Een zeldzame combinatie van design, wellness en locatie.