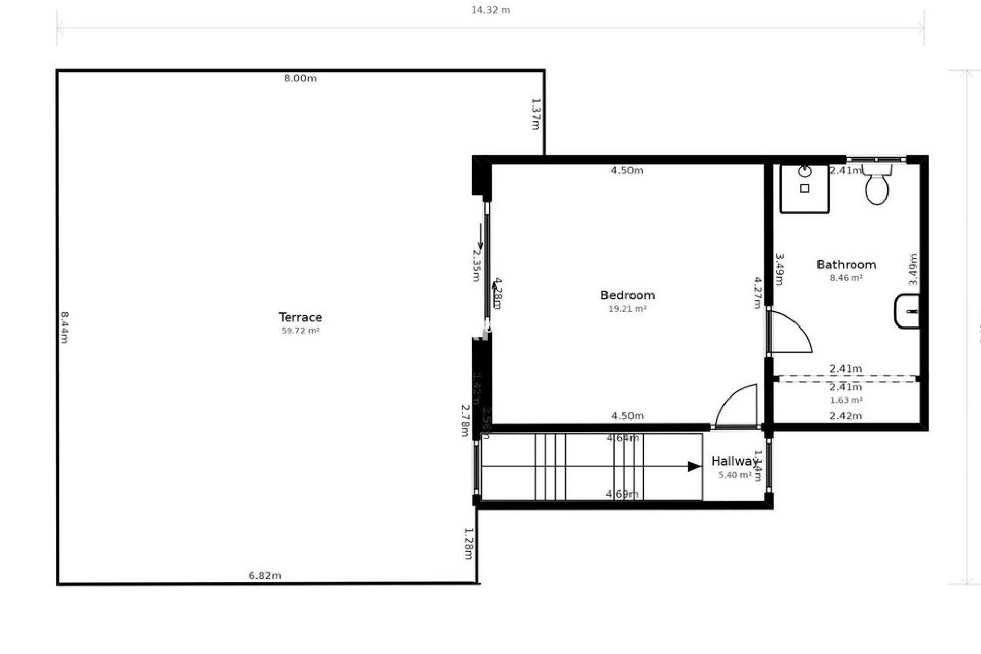
Entdecken Sie diese großartige Immobilie auf einem Grundstück von 785 m2 – perfekt für diejenigen die Komfort und spektakuläre Ausblicke suchen. Das Haus bietet eine geräumige Innenfläche von insgesamt ca. 115 m2 , intelligent verteilt über zwei Etagen . Im Erdgeschoss finden Sie ein gemütliches Foyer , das zu einem hellen Wohn- Esszimmer führt sowie einer modernen offenen Küche gestaltet um den Platz optimal auszunutzen . Außerdem gibt es zwei komfortable Schlafzimmer und ein elegantes Familienbad ergänzt durch zwei Terrassen wo Sie die frische Luft genießen können .~~Im Obergeschoss sticht das Hauptschlafzimmer hervor ausgestattet mit eigenem Badezimmer en suite sowie beeindruckender privater Terrasse ; perfekt zum Entspannen währenddessen sie atemberaubenden Blick aufs Mittelmeer , dem ikonischen Peñón de Ifach-Felsen & nahegelegenen Salinen genießen kann.~Die Immobilie beinhaltet auch außergewöhnliche Annehmlichkeiten wie zentrale Heizung/Kühlungssysteme(Ventilation ) einen privaten Pool(8 x4 Meter) große Gartenflächen welche sich hervorragend für Aktivitäten im Freien eignen oder einfach nur um die natürliche Umgebung zu entspannen.Unterbringungsraum genug vorhanden dass mehrere Fahrzeuge parken könnten dank seiner Doppelgaragen + zusätzlicher Stellplätze draußen ~es hat zudem eigenes Wasserbrunnen was konstante unabhängige Versorgung ganzjährig gewährleistet.