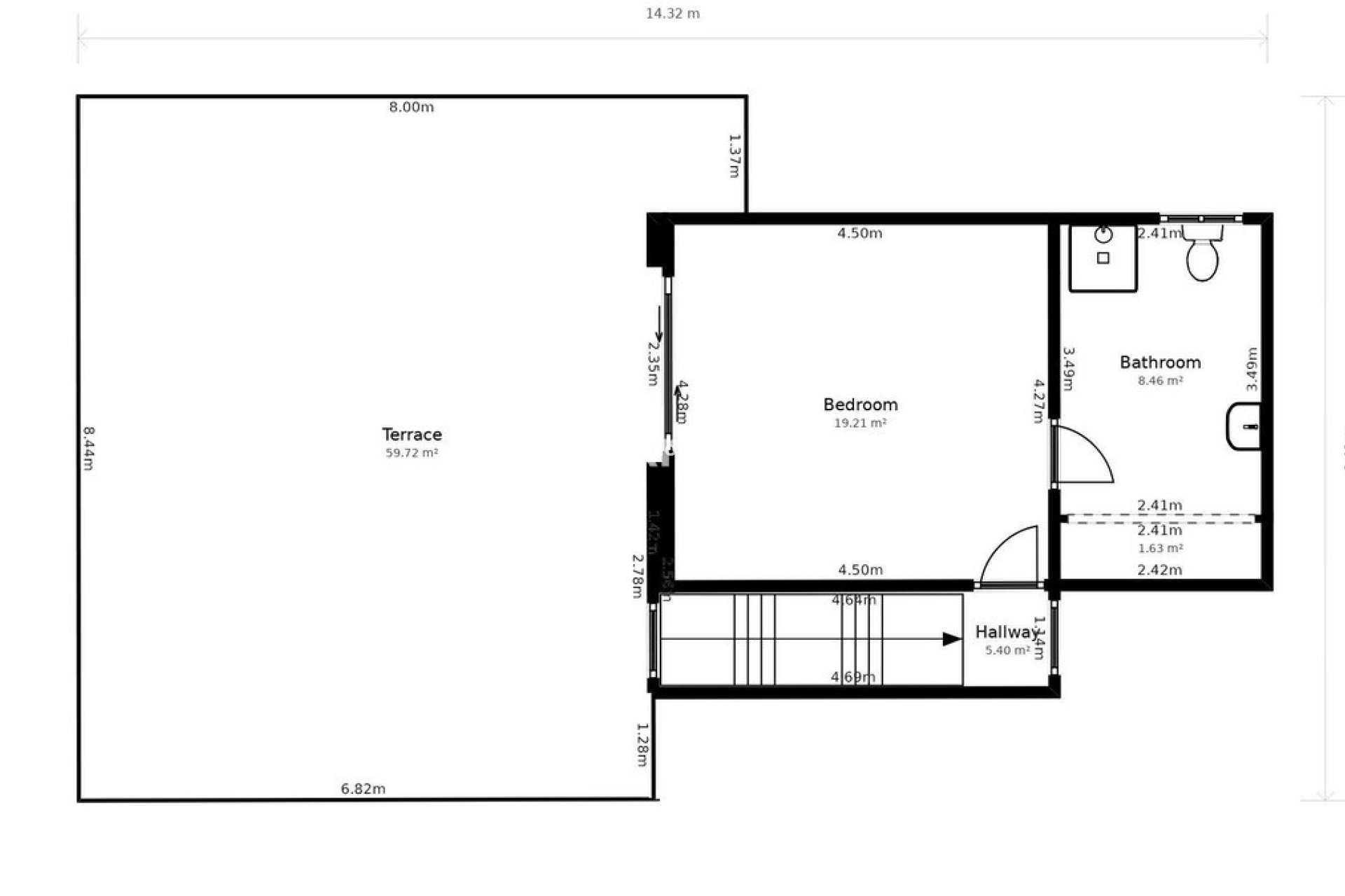
Descubre esta magnífica propiedad ubicada en una parcela de 785 m2, ideal para quienes buscan confort y vistas espectaculares. La vivienda cuenta con un amplio espacio interior de 115 m2 que se distribuye inteligentemente entre dos plantas. En la planta baja encontrarás un acogedor vestíbulo que da paso a un luminoso salón-comedor, así como una moderna cocina abierta diseñada para maximizar el espacio. Además, dispone de dos cómodas habitaciones y un elegante baño familiar, complementado por dos terrazas donde podrás disfrutar del aire libre.~~En la planta superior destaca el dormitorio principal equipado con su propio cuarto de baño ensuite e impresionante terraza privada; perfecto para relajarte mientras contemplas las impresionantes vistas hacia el mar Mediterráneo, el icónico Peñón de Ifach y las salinas cercanas.~~La propiedad también incluye comodidades excepcionales como climatización frío/calor centralizada, piscina privada (8x4 metros), amplias áreas ajardinadas ideales para actividades al aire libre o simplemente disfrutar del entorno natural. Con capacidad suficiente para varios vehículos gracias a sus garajes dobles más espacios adicionales en exteriores,~y además posee pozo privado lo cual garantiza suministro constante e independiente durante todo el año.