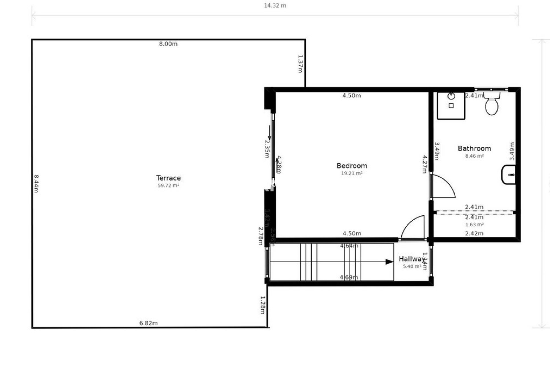
Ontdek deze prachtige woning gelegen op een perceel van 785 m2, ideaal voor wie comfort en spectaculaire uitzichten zoekt. De woning heeft een ruime binnenruimte van 115 m2 die slim is verdeeld over twee verdiepingen. Op het gelijkvloers vind je een gezellige hal die leidt naar een lichte woonkamer-eetkamer evenals een moderne open keuken ontworpen om ruimte te maximaliseren. Daarnaast zijn er twee comfortabele slaapkamers en een elegante gezinsbadkamer aanwezig, aangevuld met twee terrassen waar je kunt genieten van het buitenleven.~~Op verdieping bovenin valt vooral slaapkamer uit welke uitgerust is met eigen ensuite badkamer e indrukwekkend prive terras ; perfect om te ontspannen terwijl je geniet vd adembenemend uitzicht op zee Middellandse Zee , iconische Peñón del Ifach and nabijgelegen zoutpannen .~ ~de eigendom bevat ook uitzonderlijke voorzieningen zoals gecentraliseerde klimaatregeling koel / warm ، privépiscine (8 ×4 meter) ,ruime groene ruimtes ideaal voor buitensportactiviteiten of gewoon genieten v natural omgeving . Met voldoende capaciteit voor meerdere voertuigen dankzij dubbele garageplus extra parkeerplaatsen buitenshuis,heeft bovendien private put wat zorgt voorde constant onafhankelijk water voorziening gedurende heel jaar.