This beautiful contemporary ecological villa is an off plan in the beautiful area of Marbella Club Golf with stunning open golf views and mountain views and shall be finished with the highest specifications possible on 3 floors.
This villa will consist of out:
Ground floor; double-height entrance hall, lift, guest toilet, large living/dining area with an open-plan kitchen, laundry room, shoe dressing, and office space that can be converted in a bedroom with bathroom.
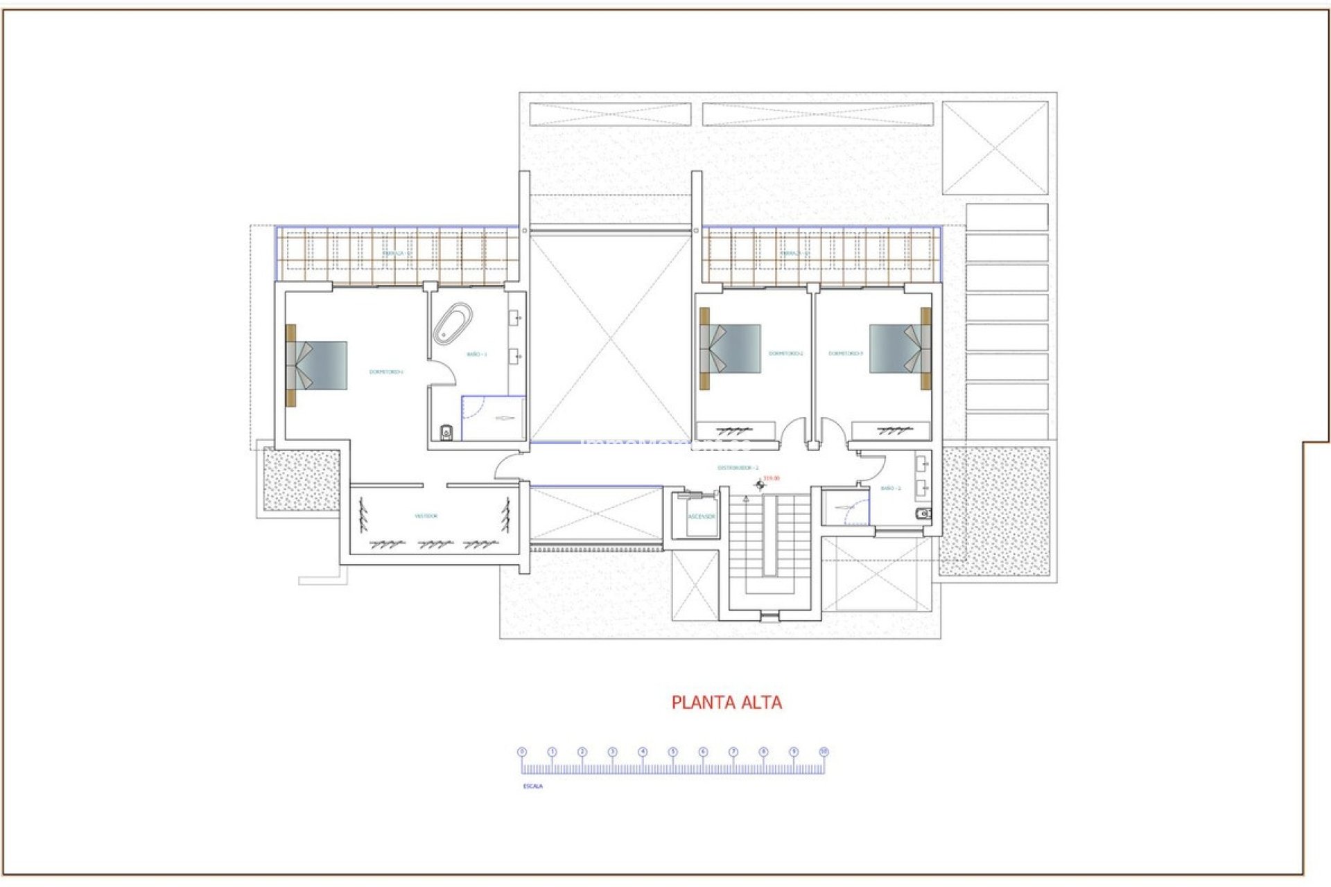
First floor; lift, master bedroom with ensuite bathroom, dressing, and private terrace, a further 2 bedrooms that share a bathroom and each with a terrace.
Basement; big garage, lift, machine room, storage room, sauna, bathroom, gymnasium, the basement has windows so there is a possibility to adapt the floorplan and add another bedroom with ensuite bathroom without increasing the cost.
Design can easily be adapted to give you more bedrooms and/or bathrooms.
Pictures of kitchens and bathrooms are just examples, the final choice will be that of the client!
Example of some of the specifications,
- Interior and exterior floor tiles from GRESPANIA - SALONI or LIVING CERAMICS
- Bathroom walls with COVERLAM plates (GRESPANIA) 2700X1200
- Bathrooms from ROCA - GEBERIT or VILLEROY BOCH
- Aerothermia/airconditioning
- Elevator from Schindler or similar
- Hydraulic underfloor heating in the living area
- Electric underfloor heating in the. bathrooms and guest toilet
- Ceiling high windows with a sunken track, 5+5/chamber/4+4
- Pivoting entrance door ceiling high
- Ceiling high and 1-meter wide HPL doors,
- Fully fitted kitchen with aluminum frame doors and covered with COVERLAM
- Island with COVERLAM with no visible joints
- White goods from Bosch or AEG
- Electricity fittings from NIESSEN or BTICINO
- Heated infinity pool with automatic cover
- 24 solar panels
- 2 lithium batteries of each 10kW
- Car charger
- Domótica
We are a construction company, Key-in-Hand, that can design and construct any possibility you can think of. If you do not see a design of us that you like we design a totally new villa for you according to your ideas and input.
Although we prefer to construct ecological building, we can construct from traditional construction to ecological constructions it all depends on you.