Exclusive Contemporary Living in La Cala de Mijas
A rare opportunity to acquire a stunning, modern four-bedroom apartment in one of the most prestigious developments on the sun-drenched side of the La Cala de Mijas valley.
This exceptional residence enjoys a privileged corner position with natural light flowing in from three directions, creating an airy and luminous atmosphere throughout. The expansive southwest-facing terrace is a true highlight—offering panoramic views of the Mediterranean Sea and surrounding mountains, with breathtaking sunsets that define Costa del Sol living. As evening falls, the clear skies reveal a spectacular display of stars and the light from the mountains.
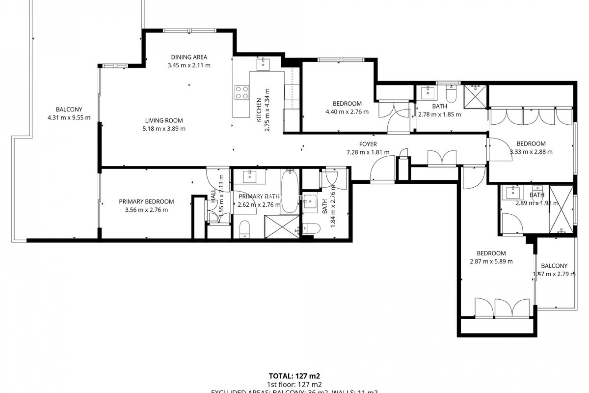
The apartment comprises four beautifully appointed bedrooms. Two feature en-suite bathrooms, while the remaining two share a stylishly designed bathroom. A separate guest WC includes a discreetly integrated laundry area. Soft tones, elegant finishes, and abundant natural light define each bedroom, with two offering direct access to the terrace.
At the heart of the home lies a sophisticated open-plan living area, seamlessly integrating the kitchen, dining, and lounge spaces. The fully fitted kitchen is equipped with high-end appliances and designed for both functionality and social interaction. Floor-to-ceiling sliding glass doors disappear seamlessly into the structure, creating a fluid transition between indoor and outdoor living—perfectly suited to the region's exceptional climate. The indoor climate is regulated by integrated air-condition (areothermia) and under floor heating through out the whole apartment.
Quality is evident throughout, with premium materials and finishes in both kitchen and bathrooms. Enhanced insulation and energy-efficient glazing ensure tranquility, privacy, and optimal energy performance. A unique eco-filtration system provides purified drinking water directly from the taps, adding a further layer of convenience and sustainability.
The property is located within the exclusive gated community of Azalea, offering 24-hour security and impeccably maintained surroundings. Residents enjoy beautifully landscaped gardens, scenic walkways, and access to three swimming pools, including a heated pool for year-round use. Luxurious sunbeds and partially submerged loungers create a resort-style atmosphere.
Additional amenities include a fully equipped gym and cardio studio, supporting a healthy and active lifestyle.
The apartment also benefits from two private parking spaces, a spacious storage room, and direct lift access connecting all levels for maximum convenience.
This is a home designed for effortless living—where comfort, security, and elegance come together to create a truly exceptional lifestyle.