Exclusive New-Build Modern Villa (2023) in Residencial L'Amerador
Contemporary detached villa built in 2023, featuring a private pool, spacious terraces, parking for two cars and an independent garage with direct access to the house.
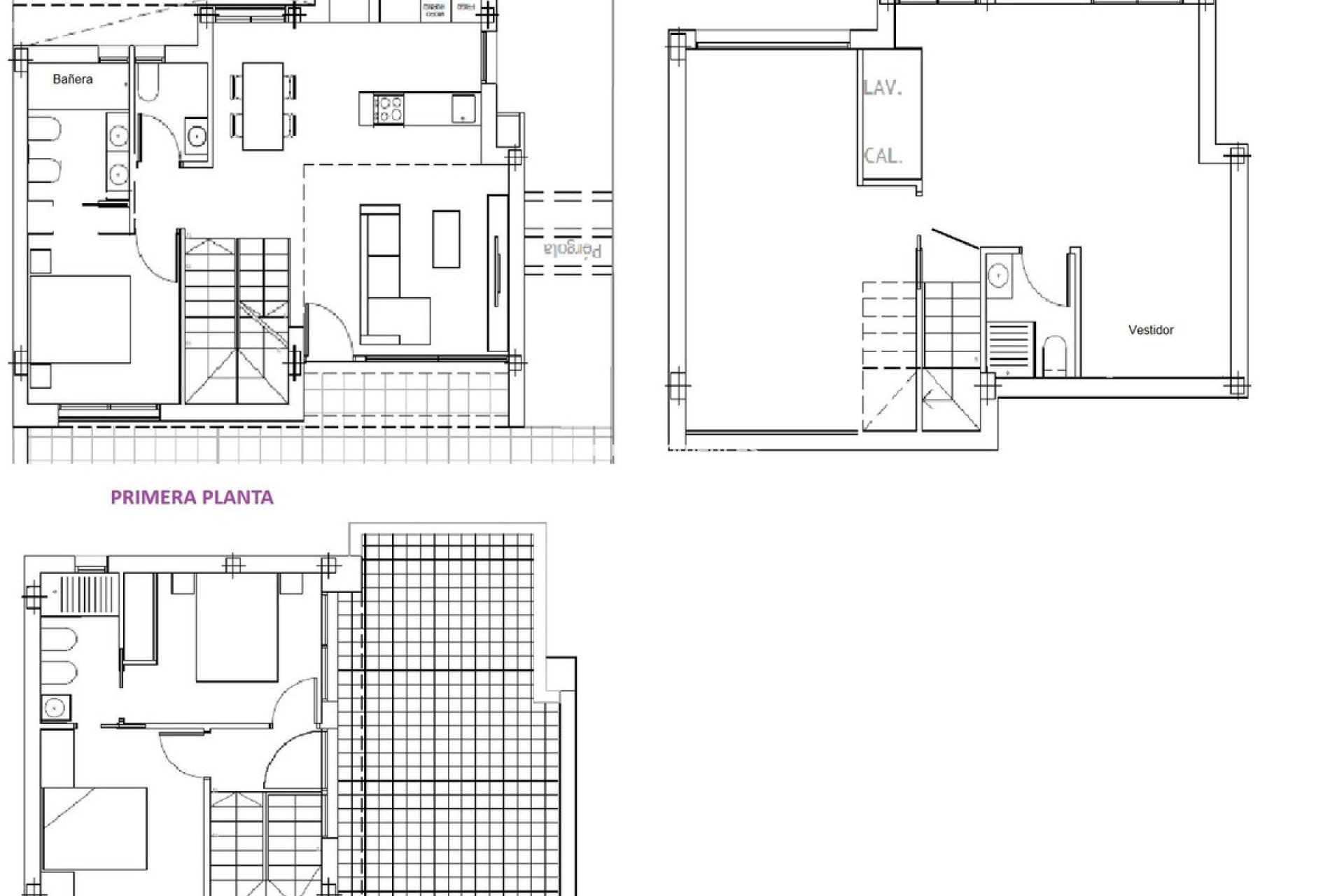
The property offers 3 bedrooms (with the option to create a 4th bedroom in the basement), 4 bathrooms and a large multifunctional basement.
Ground floor with an open-plan living area and modern kitchen, master bedroom with en-suite bathroom and guest toilet.
First floor with two bedrooms, fitted wardrobes, shared bathroom and private terrace.
Basement with a spacious room, full bathroom, dressing area, patio and utility room.
An ideal home for permanent living or a high-quality investment in a prime residential area.
The house has:
- AIR CONDITIONING HOT/COLD
- FLOOR HEATING IN THE BATHROOMS.
- SOLAR PANELS
- AEROTERMIA
- FULLY EQUIPPED KITCHEN
- LARGE DRESSING ROOM
-PRIVATE SWIMING POOL 18m2
- GARAGE WITH ELECTRIC CAR SOCKET
LOCATION:
This house is well connected to the city centre and Alicante via the TRAM tram and bus lines.
At 15 minutes from Platja de l'Amerador, at 10 minutes from the TRAM stop 'Poble Espanyol' and at 5 minutes by car or 30 minutes walking from the ALDI supermarket.
The house is rented until May 1, 2026. Viewings are possible by prior arrangement.
Contact us for more information.
We speak Spanish, English and Russian.