Duplex Penthouse with Panoramic Sea & Golf Views – Urb. Altos de La Quinta
Welcome to this exceptional 3-bedroom duplex penthouse in Urb. Altos de La Quinta, offering breathtaking panoramic sea views, frontline vistas over La Quinta Golf Course, La Concha and a prime location right next to the prestigious The Westin La Quinta Golf Resort & Spa.
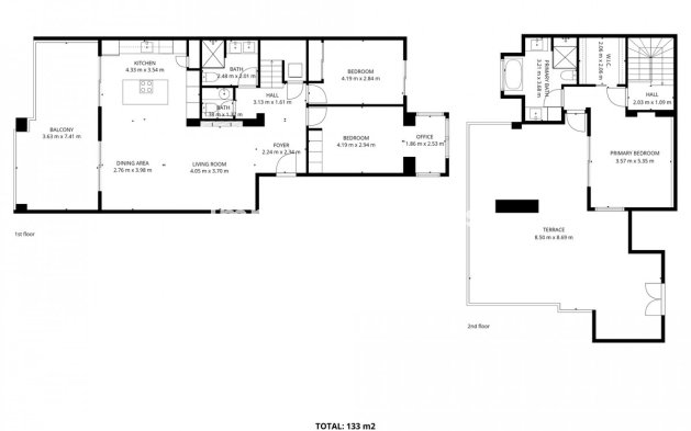
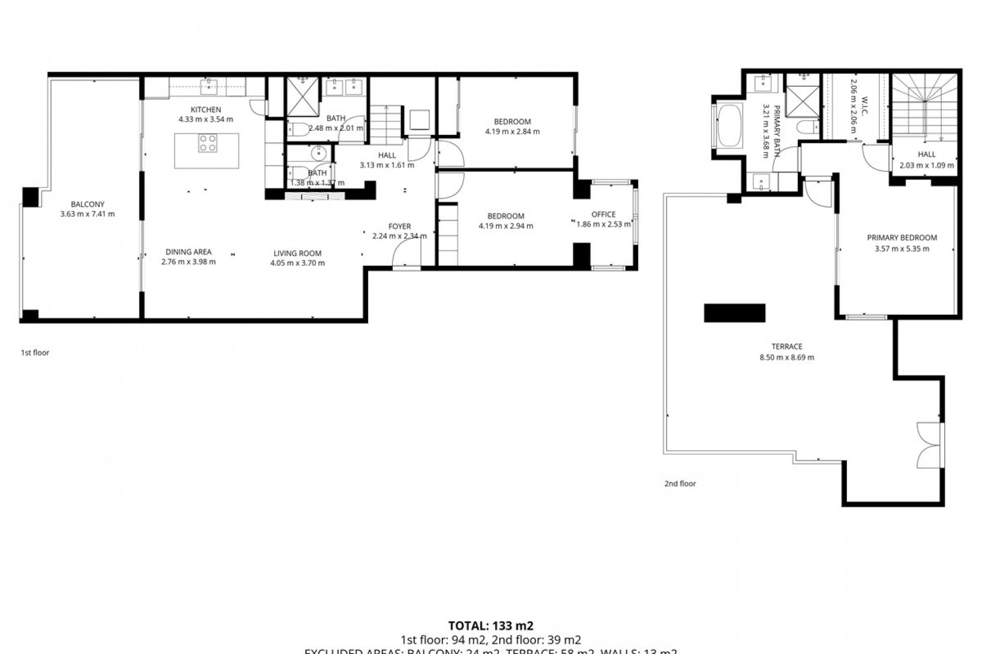
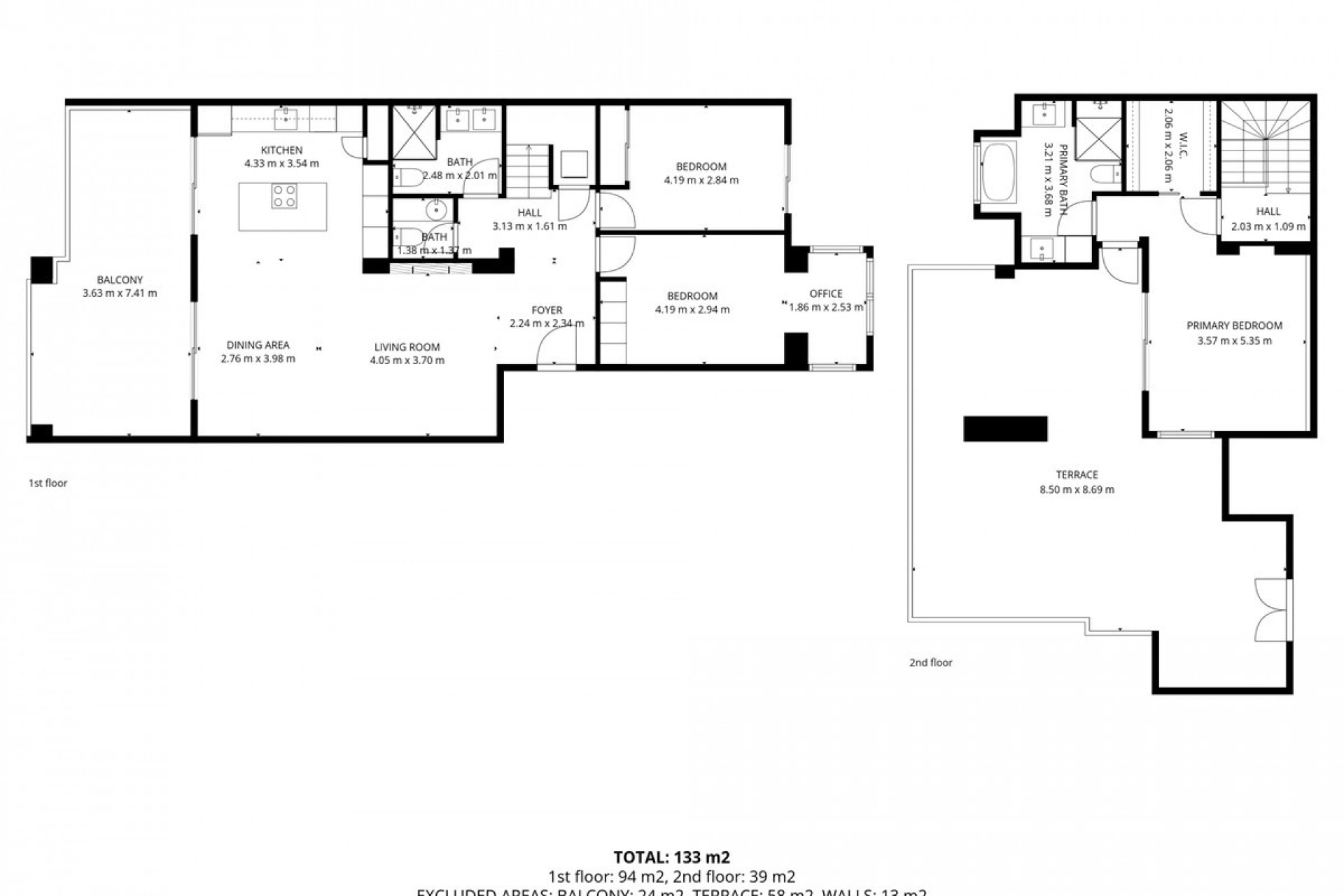
Main Level
The entrance level features a bright and spacious open-plan layout combining the living area and modern kitchen, designed to maximize natural light and views.
Two generous double bedrooms
One full bathroom
One guest toilet
Direct access to terraces with stunning sea and golf views
The seamless indoor–outdoor flow makes this level perfect for both everyday living and entertaining.
Upper Level – Private Master Suite & Spectacular Roof Terrace
Upstairs you'll find the impressive master suite, offering complete privacy and luxury:
Spacious master bedroom
En-suite bathroom with sea views
Walk-in wardrobe
This level also provides access to a huge private roof terrace, a true highlight of the property. Designed for enjoying the Costa del Sol lifestyle, it includes:
Outdoor shower
Storage room
Ample space for dining, lounging, and sunbathing
Uninterrupted panoramic views of the Mediterranean and golf course
Additional Features
1 outdoor parking space
Elevated position ensuring privacy and open views
Lift
Quiet and exclusive residential area
This penthouse is ideal as a permanent residence, luxury holiday home, or high-end investment property in one of the most sought-after golf areas on the Costa del Sol.
A rare opportunity to own a property combining privacy, views, and proximity to golf, and 5-star amenities.