Beachfront 1-Bedroom Apartment with Reform Project to 2 Bedrooms Included – Avenida España, Puerto de Estepona
First line beach in the heart of Estepona – walk straight out onto the sand!
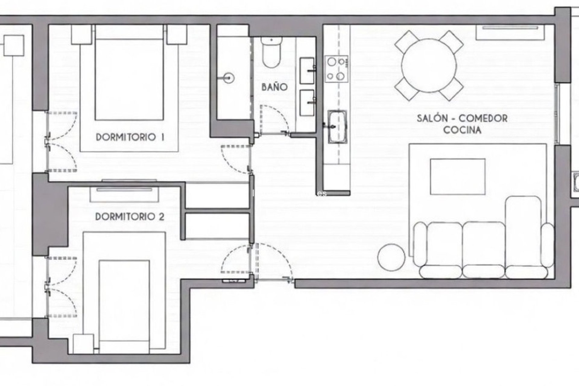
Exceptional opportunity on the iconic Avenida España promenade: a bright apartment with direct sea access and the added value of a full reform project to convert it into a 2-bedroom property included in the price (plans and modern renderings available).
Key Features
70 m² built
1 bedroom (easily convertible to 2) | 1 bathroom
Bright living-dining room with direct access to terrace
Independent kitchen + laundry area
Private terrace and patio
Fitted wardrobes
Air conditioning
1st floor exterior with lift
Included
Private underground parking space
Storage room (trastero)
Complete architectural project to transform into 2 bedrooms
Community & Location
Peaceful building in the centre of Estepona with everything on your doorstep: best restaurants, shops, supermarkets, health centre, schools and the vibrant promenade. Just steps from the beach, marina and all services.
The perfect combination of beachfront lifestyle and city convenience – ideal for both living and investment. Parking in the centre is a massive bonus.
Viewing highly recommended – contact us today to arrange a private viewing and see the reform project!